| Číslo zakázky: | 8839786 | ![]() Karta nemovitosti |
|---|---|---|
| Typ zakázky: | prodej |
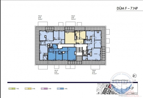
Nabízím Vám byt 4+kk o rozloze 91,6 m2 plus terasa 55 m2 (číslo bytu 704/F) v 7. NP moderní novostavby s výtahem, projekt REZIDENCE U VLTAVY IV v Kralupech nad Vltavou, kolaudace jaro 2027.
Jedná se o převod budoucí kupní smlouvy, kterou má současný majitel bytu podepsanou s developerem Finep. Cena za byt celkem 11.000.000 Kč se skládá z těchto dvou částí:
1) Současný majitel odprodává svoje budoucí vlastnické právo za cenu 3.202.072 Kč,
2) Vy jako budoucí kupující k tomuto uhradíte developerovi v budoucnu doplatek ve výši 7.797.928 Kč, a to do 30 dnů od výzvy k podpisu kupní smlouvy (až po kolaudaci bytu, tedy nejdříve na jaře 2027).
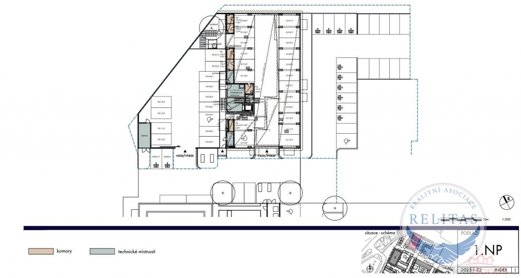
Současný majitel Vám zároveň nabízí možnost koupit si k bytu kryté garážové stání s prostornou komorou, která se nachází hned před tímto parkovacím stáním, můžete tedy věci z auta vykládat rovnou do komory u svého parkingu, a to za cenu 850.000 Kč.
Případně je k dispozici ještě 2x venkovní parkovací stání bez komory, každé za cenu 550.000 Kč. Tyto parkovací stání nejsou zahrnuty v ceně bytu, nutno k bytu připočítat.
Dům i byt jsou navrženy s důrazem na kvalitní provedení, bezpečnost a nízké provozní náklady (energetická třída B).
Byt bude proveden v tomto standardu developera:
- kvalitní podlahové krytiny v obytných místnostech
- keramická dlažba a obklady v koupelně a na WC
- bezpečnostní vstupní dveře
- interiérové dveře s obložkovými zárubněmi
- plastová okna s izolačním trojsklem a přípravou na žaluzie
Koupelna je vybavena sanitou LAUFEN a bateriemi HANSGROHE, topný žebřík, dle výběru vana či sprchový kout, příprava na pračku.
Možnost klientských změn v období 5/2026-11/2026
Dům nabízí:
- výtah renomované značky
- centrální vytápění (kondenzační kotel na zemní plyn) s termostatickou regulací
- videotelefon
- kontrolovaný vstup do objektu
Byt je vhodný pro vlastní bydlení i jako investice.
V areálu vznikajícího moderního sídliště bude nová mateřská škola, obchody a služby. Dům se nachází u autobusového terminálu a vlakového nádraží, výborná dostupnost do Prahy na každodenní dojíždění.
| Cena: |
(za nemovitost) 11 000 000,- Kč
(včetně provize) (včetně právního servisu)
|
|---|
| Dispozice bytu | 4+kk |
|---|---|
| Číslo podlaží v domě | 7 |
| Počet podlaží objektu | 7 |
| Celková podlahová plocha | 147 m² |
| Druh objektu | smíšená |
| Stav objektu | novostavba |
| Energetická třída | B - Velmi úsporná |
| Vlastnictví | osobní |
| Plocha teras | 55 m² |
| Umístění objektu | okrajová zástavba |
| Doprava | vlak |
| Plyn | Zaveden |
| Rok kolaudace | 2 027 |
| Užitná plocha | 92 m² |
| Charakter okolní zástavby | obchodní a obytná |




