| Číslo zakázky: | 00642 | ![]() Karta nemovitosti |
|---|---|---|
| Typ zakázky: | prodej |
Nabízíme k prodeji dvoupodlažní RD 5+kk, 297 m2, Unhošť. Jedná se o 1/2 dvojdomu.
Pozemek-zahrada, který patří k této části dvojdomu má výměru 900 m2.
Dům má vlastní garáž, která je průchozí do domu. Před garáží je místo pro parkování automobilu zpevněné zámkovou dlažbou.
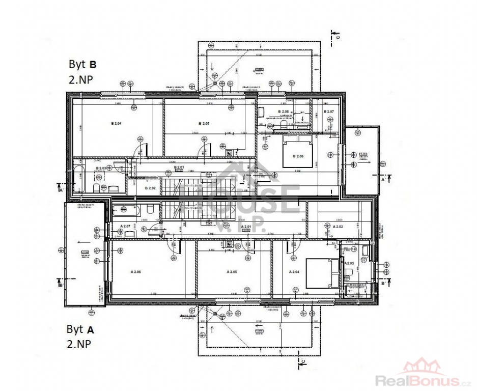
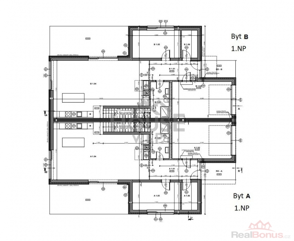
V přízemí domu je velký otevřený prostor, s velkými okny, umožňujícími vstup do zahrady. Prostor je zamýšlen k využití jako obývací pokoj s kuchyní. V prostoru kuchyně je připravena energetická přípojka pro případný kuchyňský ostrůvek. V místnosti je též připraven vývod pro instalaci krbové vložky. V přízemí je dále samostatný pokoj, koupelna se sprchovým koutem a toaletou, šatna a předsíň.
První patro je již členěné. Pokoje poskytují dostatek soukromí a mohou být využity jako ložnice, studovna, dětský pokoj dle libosti. Na patře je rovněž koupelna, WC a v jednom z pokojů jsou připraveny přípojky vody a odpadu, což nabízí variabilní využití tohoto pokoje. V prvním patře jsou rovněž terasy.
Dům je zděný ze sendvičového zdiva výrobce BSG, typ LIVETHERM
Izolace obálky je integrovaná v sendvičovém zdivu LIVETHERM
Vytápění je podlahové - elektrické topné rohože (v garáži je stropní elektrická topná rohož), druhým zdrojem vytápění je krbová vložka. Krbová vložka má připraveno trubní vedení pro přisávání vzduchu a zároveň kouřovod.
Elektřina je řešena elektroměrem pro každou část domu zvlášť. Aktuálně je osazen staveništní odběr. Klient si zažádá o osazení svého odběrného místa dle jeho požadavků na jištění a potřebu parametrů připojení.
Střecha je plochá, krytina je hydroizolační fólie z PVC. Izolace je EPS100 tl. 220 mm + spádový klín tl. 20-200 mm.
Fotovoltaika je možná dodatečně doplnit do RD. Plochá střecha a její konstrukce je připravena pro doplnění návrhu umístění fotovoltaických panelů.
Zdroj vody je obecní vodovod. Dům má jednu přípojku a ve vodoměrné šachtě dochází k rozdělení na obě části RD a měření skutečné spotřeby vody podružnými vodoměry.
Dům je napojen na obecní kanalizaci.
Okna jsou dřevěná, bez bezpečnostních prvků, bez fólií, 3-skla.
Dvojdům se nachází v malebné krajině Křivoklátských lesů u města Unhoště.
| Cena: |
(za nemovitost) 15 600 000,- Kč
(včetně provize, včetně právního servisu)
|
|---|
| Počet podlaží objektu | 2 |
|---|---|
| Druh objektu | cihlová |
| Stav objektu | velmi dobrý |
| Energetická třída | B - Velmi úsporná |
| Lodžie | 4 m² |
| Vybavení | lodžie |
| Umístění objektu | centrum |
| Topení | Lokální - tuhá paliva Jiné |
| Doprava | vlak dálnice silnice MHD |
| Voda | dálkový vodovod |
| Odpad | Městská kanalizace |
| Stáří objektu | 4 |
| Rok kolaudace | 2 022 |
| Počet míst k parkování | 1 |
| Zastavěná plocha | 297 m² |
| Plocha parcely | 901 m² |
| Ostatní | Parkoviště |
| Užitná plocha | 297 m² |
| Počet bytů - celkem | 1 |
| Inženýrské sítě | Vodovod Kanalizace |
| Charakter okolní zástavby | obytná |
| Poloha objektu | samostatný |
