| Číslo zakázky: | 230978 | ![]() Karta nemovitosti |
|---|---|---|
| Typ zakázky: | prodej |
V exkluzivním zastoupení majitele nabízím velký rodinný dům se zahradou. Klid, prostor a dostupnost, nacházející se na klidném okraji obce Lukavec. Obec, která dostala ocenění vesnice roku v roce 2022 pro Ústecký kraj.
Lokalita nabízí ideální kombinaci přírody a výborné dopravní dostupnosti - do Prahy (Letňany) se dostanete za 30 minut.
Klíčové informace:
Pozemek o rozloze 525 m2, z toho cca 319 m2 tvoří zahrada - ideální místo pro relaxaci, rodinné posezení i pěstování.
Možnost užívání dalších 575 m2 přilehlé zahrady je v dlouhodobém pronájmu. Celková užívaná plocha tak může dosahovat až 1100 m2. Možnost odkupu od Pozemkového úřadu.
Vlastní studna - nezávislý zdroj vody přímo na pozemku.
Energetická náročnost C - dům je zateplen (16-18 cm izolace), což zajišťuje nízké náklady na provoz.
K nemovitosti dokážu zajistit tepelné čerpadlo i FVE.
Rekonstrukce RD a následná kolaudace v r. 2013.
Z původního domu zůstala pouze menší část, většina stavby je zcela nově postavena a nabízí moderní standardy bydlení. Celý dům je po kompletní rekonstrukci - připravený ihned k nastěhování.
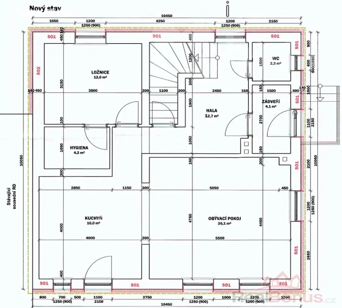
Dispozice 6+kk - prostor pro celou rodinu i vícegenerační bydlení:
Velký obývací pokoj s krbem a jídelnou - krbová vložka s výměníkem napojená na ústřední topení (všechny radiátory), jako doplňkový zdroj je k dispozici také plynový kotel.
Čtyři prostorné pokoje v patře
(v jednom pokoji vyvedeny rozvody vody a odpad, ideální pro zřízení samostatné bytové jednotky).
Ložnice v přízemí se soukromou koupelnou.
Moderní kuchyně značky Oresi s vestavěnými spotřebiči a přímým vstupem na terasu.
Dvě koupelny (sprchový kout i vana), dohromady tři toalety.
Technická místnost/sklep, půda.
Připraven projekt na garáž - sítě již hotové.
Parkování pro dvě auta přímo na pozemku nebo před domem
Co ještě zbývá dokončit?
Dům je připraven k nastěhování - chybí jen vjezdová vrata, plot a následné obložení schodiště, vše ostatní je hotovo.
Pokud budete potřebovat dobré řemeslníky pro vybudování venkovního oplocení - zděného plotu a obložení schodiště, zajistím je.
Shrnutí:
Tento dům je ideální volbou pro ty, kdo hledají klidné bydlení s dostatkem prostoru, zahradou a skvělou dostupností do města. Díky promyšlené rekonstrukci kombinuje kouzlo venkova s moderním komfortem. Možnost vícegeneračního bydlení, podnikání z domu a využití rozlehlé zahrady podle vlastních představ.
Neváhejte mě kontaktovat pro více informací nebo domluvení prohlídky. Tento dům vás chytne za srdce.
Majitel si vyhrazuje právo prodat nemovitost nejvyšší nabídce.
Uvedené výměry jsou orientační. Veškeré zveřejněné údaje obsažené v tomto inzerátu mají pouze informativní charakter a nejsou nabídkou ve smyslu § 1731 nebo § 1732 občanského zákoníku, ani se nejedná o veřejný příslib dle § 1733 občanského zákoníku.
| Cena: |
(za nemovitost) 8 190 000,- Kč
(včetně provize a právních služeb) (Včetně právního servisu)
|
|---|
| Počet podlaží objektu | 1 |
|---|---|
| Druh objektu | cihlová |
| Stav objektu | po rekonstrukci |
| Energetická třída | C - Úsporná |
| Vlastnictví | osobní |
| Vlastní pozemek | 525 m² |
| Plocha sklepu | 14 m² |
| Vybavení | sklep zahrada |
| Vybaveno | Nezařízeno |
| Topení | Lokální - plynové |
| Elektřina | 230 V 380 V |
| Voda | zdroj pro celý objekt vlastní studna |
| Plyn | Zaveden |
| Rok rekonstrukce | 2 013 |
| Rok kolaudace | 2 013 |
| Zastavěná plocha | 105 m² |
| Plocha parcely | 525 m² |
| Užitná plocha | 155 m² |
| Plocha zahrady | 420 m² |
| Poloha objektu | řadový |
| Velikost bytů (3+1, 2+kk atd.) | 6 +kk |
| K dispozici od | 01.11.2025 |




