| Číslo zakázky: | 19496 | ![]() Karta nemovitosti |
|---|---|---|
| Typ zakázky: | prodej |
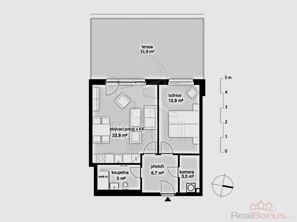
Nabízíme k prodeji novostavbu bytu 2+kk/komora, OV, 52,6 m2, 31,90 m2 terasa, 2,5 m2 sklepní kóje, garážové stání, Praha 9 - Kbely, ul. Sedlářova. Byt se nachází ve druhém podlaží novostavby bytového domu v klidné lokalitě Prahy 9 - Kbely. Nový byt, nikdy se v něm nebydlelo. Kuchyňská linka včetně spotřebičů - horkovzdušná trouba, digestoř, indukční deska, myčka. Stropy pohledový beton, venkovní rolety, bezpečnostní dveře, koupelna s velkým sprchovým koutem a toaletou, komora. Na terase dlažba a zatravněná plocha. K bytu náleží sklepní kóje, garážové stání. V domě kolárna se sprchovým koutem.
Dobrá dopravní dostupnost, vlakem Praha Hlavní nádraží 18 min., autobusem metro C Letňany 6 min., v okolí veškerá občanská vybavenost, příroda krajinný park Havraňák 800 m.
Na tuto nemovitost Vám zajistit financování s nízkou úrokovou sazbou od 4,39%, případně družstevní financování - zaplatíte 20% a bydlíte, zbytek splátky bez prokazování příjmů.
Doporučujeme prohlídku.
| Cena: |
(za nemovitost) 9 321 000,- Kč
(platby SVJ: 5200, elektřina: 1000, jiné: 200) (včetně provize)
|
|---|
| Dispozice bytu | 2+kk |
|---|---|
| Číslo podlaží v domě | 2 |
| Počet podlaží objektu | 6 |
| Celková podlahová plocha | 84 m² |
| Druh objektu | skeletová |
| Stav objektu | novostavba |
| Energetická třída | B - Velmi úsporná |
| Vlastnictví | osobní |
| Počet podlaží pod zemí | 1 |
| Plocha teras | 31 m² |
| Bezbariérový byt | ano |
| Umístění objektu | klidná část obce |
| Doprava | vlak |
| Odpad | Městská kanalizace |
| Rok kolaudace | 2 023 |
| Užitná plocha | 84 m² |




