| Číslo zakázky: | 32094 | ![]() Karta nemovitosti |
|---|---|---|
| Typ zakázky: | pronájem |
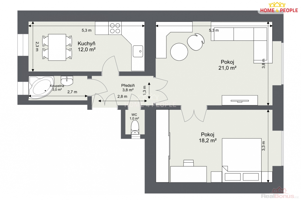
+popl. 4795, převod elektřiny a plynu na nájemce, + provize RK, Zprostředkujeme Vám ve výhradním zastoupení majitele dlouhodobý pronájem prostorného bytu 2+1 o velikosti 59m. Byt se nachází ve druhém patře v historického činžovního domu bez výtahu. Kuchyňská linka je vybavena pouze plynovým sporákem. Možnost zabudování myčky. Obývací pokoj a ložnice jsou bez vybavení. V koupelně je prostorná rohová vana, WC je zvlášť. Vytápění je zajištěno novým plynovým kotlem Bosch. Orientace bytu je na západ ložnice a obývací pokoj, kuchyň je na východ.
V okolí je občanská vybavenost. Klidná ulice pár kroků od Pražské náplavky na nábřeží.
V blízkosti domu je zastávka TRAM na Rašínově Nábřeží, 5.minut pěšky metro Palackého Náměstí.
V této tradiční rezidenční lokalitě najdete také síť obchodů a služeb, mateřskou i základní školu i zdravotnické zařízení.
Neváhejte mě kontaktovat pro více informací nebo prohlídku. Byt je volný ihned k nastěhování. Poplatky za energie převod na nájemce (elektřina cca 1500,-Kč a plyn cca 2500,-kč), voda, popelnice, úklid 795,-Kč/ 1 osoba. Pronajímatel si vyhrazuje právo vybrat zájemce na základě jím zvolených kritérií. Byt je vhodný pro jednu osobu či pár. Preferujeme nekuřáky. Na všechny emaily bude odpovězeno, prosím kontrolu složky spam. Budu se těšit na prohlídce. Ev. číslo: 32094. Energetický štítek: G (1 kWh/m2/rok).
| Cena: |
(za měsíc) 22 000,- Kč
(+popl. 4795, převod elektřiny a plynu na nájemce, + provize RK)
|
|---|
| Dispozice bytu | 2+1 |
|---|---|
| Číslo podlaží v domě | 2 |
| Počet podlaží objektu | 4 |
| Celková podlahová plocha | 59 m² |
| Druh objektu | cihlová |
| Stav objektu | dobrý |
| Energetická třída | G - Mimořádně nehospodárná |
| Vlastnictví | družstevní |
| Vybaveno | Nezařízeno |
| Užitná plocha | 59 m² |




