| Číslo zakázky: | 00117 | ![]() Karta nemovitosti |
|---|---|---|
| Typ zakázky: | pronájem |
Nabízíme k pronájmu soubor dvou komerčních prostor o celkové dispozici ve dvou podlažích, situovaných v lukrativní lokalitě Praha 3 ? Žižkov, ulice Táboritská. Prostory se pronajímají jako jeden funkční celek, ideální pro kombinaci klientské zóny (showroom/prodejna/kancelář) a zázemí (sklad/výroba/archiv).
LOKALITA A POTENCIÁL:
Nemovitost se nachází na strategickém místě s mimořádnou průchodností! V těsné blízkosti tramvajové zastávky Lipanská. Jde o jednu z hlavních žižkovských tepen zajišťujících vysokou viditelnost a organickou návštěvnost. Okolí tvoří hustá rezidenční zástavba i síť obchodů a služeb.
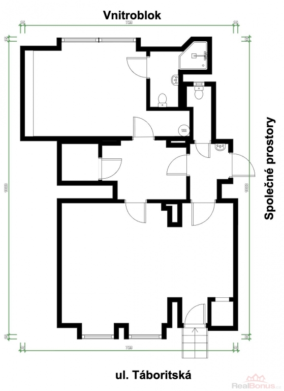
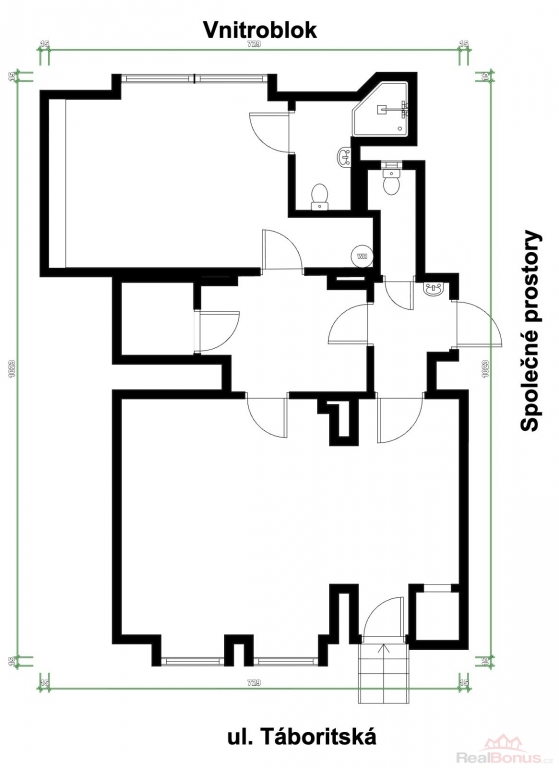
DISPOZICE A TECHNICKÝ STAV:
1. Přízemí (Obchodní část):
? Přímý vstup z ulice Táboritská (možnost výlohy/reklamy).
? Aktuální kolaudace: Kancelář.
? Vybavení: Zavedena plynová přípojka. Vytápění je nutné řešit instalací elektrického kotle.
2. Podzemní podlaží (Zázemí):
? Variabilní přístup: Vstup možný přes přízemní prostor (interní propojení) nebo samostatně z hlavního vchodu domu.
? Stav: Nadstandardně suché prostory bez známek vlhkosti (vhodné i pro archivaci či skladování citlivého zboží).
? Aktuální kolaudace: Sklep.
PODMÍNKY A MOŽNOSTI ÚPRAV:
Majitel nemovitosti nabízí budoucímu nájemci plnou součinnost při jednání s úřady za účelem změny užívání (rekolaudace) pro specifický podnikatelský záměr. Jedná se o příležitost přizpůsobit prostor přesně na míru vašemu podnikání.
PROHLÍDKY:
K dispozici kdykoliv po předchozí domluvě.
Neváhejte nás kontaktovat pro bližší informace a sjednání termínu prohlídky.
| Cena: |
(za měsíc) 28 000,- Kč
(+ poplatky za služby spojené s užíváním nemovitostí, bez DPH, bez poplatků, + provize RK, bez právního servisu)
|
|---|
| Celková podlahová plocha | 123 m² |
|---|---|
| Druh objektu | cihlová |
| Stav objektu | velmi dobrý |
| Energetická třída | G - Mimořádně nehospodárná |
| Umístění objektu | centrum |
| Doprava | vlak dálnice silnice MHD autobus |
| Voda | dálkový vodovod |
| Odpad | Městská kanalizace |
| Plyn | Zaveden |
| Celková plocha | 123 m² |
| Užitná plocha | 123 m² |
| Plocha kanceláří | 123 m² |
| Komunikace | dlážděná |
| Inženýrské sítě | Vodovod Kanalizace Plyn |
| Charakter okolní zástavby | obchodní a obytná |
| Umístění v chráněných lokalitách | ochranné pásmo |
| Poloha objektu | v bloku |
| Druh prostor | Kanceláře |
| K dispozici od | 01.02.2026 |
