| Číslo zakázky: | 232071 | ![]() Karta nemovitosti |
|---|---|---|
| Typ zakázky: | pronájem |
Nabízíme pronájem nemovitosti v Libosvárech (část obce Loukov ve Zlínském kraji) o zastavěné ploše 106 m2 s celkovým pozemkem (365 m2). Budova v dobrém stavu, vhodná pro skladovací prostory, dílnu či lehkou výrobu (stavba občanského vybavení). V minulosti využíváno jako potraviny, následně prostor sloužil pro opravu motocyklů, jízdních kol a malé zahradní techniky.
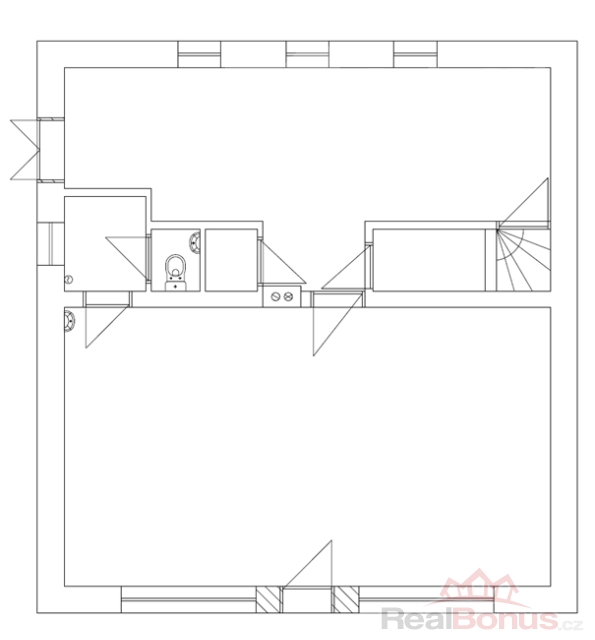
Prostory: přední místnost (46 m2), zadní místnost (27 m2), místnost pro personál (3 m2), místnost sociálního zařízení (1 m2), technická místnost (1 m2). K dispozici je i prostorná půda a menší sklepní prostor pod půdním schodištěm).
Možnost parkování aut vedle budovy. Za budovou je neoplocená zahrada.
Budova se nachází ve středu obce, okolní zástavbu tvoří rodinné domy a stavba občanské vybavenosti. Přístup je ze silnice III. třídy po zpevněných plochách - chodnících. Do zadní části objektu je přístup dopravní obsluze zajištěn po nezpevněné ploše napojené na silnici.
Vhodné pro dílnu, sklad, servis nebo lehkou výrobu.
Prostor je ihned k dispozici.
Cena dohodou.
V případě zájmu mě prosím kontaktujte.
| Cena: |
na vyžádání v RK (cena k jednání)
|
|---|
| Počet podlaží objektu | 1 |
|---|---|
| Druh objektu | cihlová |
| Stav objektu | dobrý |
| Energetická třída | G - Mimořádně nehospodárná |
| Vlastnictví | osobní |
| Vlastní pozemek | 392 m² |
| Vybavení | sklep podkroví |
| Umístění objektu | centrum |
| Telekomunikace | Internet |
| Vybaveno | Nezařízeno |
| Topení | Lokální - tuhá paliva |
| Doprava | silnice autobus |
| Elektřina | 230 V 380 V |
| Voda | zdroj pro celý objekt |
| Odpad | Septik |
| Plyn | V dosahu |
| Parkování | venkovní stání |
| Počet míst k parkování | 4 |
| Celková plocha | 106 m² |
| Účel budovy | Sklad |
| Sociální zařízení | ano |
| Zastavěná plocha | 106 m² |
| Plocha parcely | 392 m² |
| Ostatní | Bezbariérový přístup Parkoviště |
| Užitná plocha | 78 m² |
| Nebytové prostory | 78 m² |
| Plocha kanceláří | 78 m² |
| Užitná plocha v přízemí | 78 m² |
| Komunikace | asfaltová |
| Druh prostor | Obchodní |
| K dispozici od | 21.10.2025 |
