| Číslo zakázky: | 25256 | ![]() Karta nemovitosti |
|---|---|---|
| Typ zakázky: | prodej |
Na jižním svahu Krušných hor, v lázeňském městě Jáchymov, nabízíme
zařízený zrekonstruovaný byt 2+1 v osobním vlastnictví, vhodný k okamžitému bydlení nebo využití k rekreaci s dostupností celoroční sportovní a relaxační aktivity.
V docházkové vzdálenosti najdeme veškerou občanskou vybavenost, několik lázeňských domů nejunikátnějších světových lázní, turistické trasy, lyžařské vleky, sjezdové a běžkařské tratě, celoroční aquapark. V blízkosti domu se nachází autobusová zastávka zajišťující spojení do horských středisek nebo 6 km vzdáleného města Ostrova.
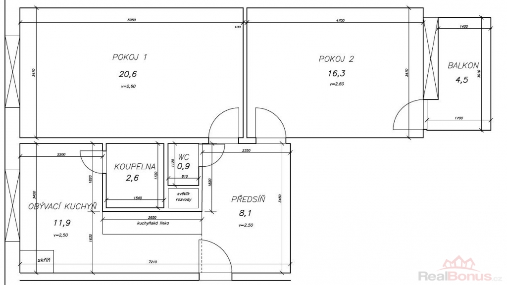
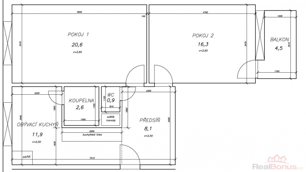
Bytová jednotka 2+1 s užitnou plochou 61 m2, v současné době využívána jako horský apartmán, je kompletně zrekonstruována, ve zděném jádru umístěna samostatná koupelna se sprchovým koutem a toaleta s vlastním vstupem.
Během rekonstrukce nově zhotoveny veškeré elektrorozvody, odpady a rozvody vody, kompletní výmalba.
Moderní kuchyně 12 m2 je vybavena elektrickými kamny s horkovzdušnou troubou, digestoří, lednicí, mikrovlnou troubou a kuchyňským setem, podlahu pokrývá keramická dlažba. Vstup do bytu zpříjemňuje prostorná předsíň 8,1 m2 s úložným prostorem a samostatnými vchody do pokojů 20,6 a 16,3 m2, zařízených pro ubytování čtyř osob. V pokojích jsou zrenovované původní parkety působící velice hřejivým dojmem.
Jeden z pokojů, orientovaný na severozápad, s výhledem do zeleně, umožňuje vstup na prostornou lodžii 4,5 m2 , zaručující klidné posezení na odvrácené straně od veškerého ruchu města, s výhledem na dětské hřiště umožňující bezpečný pohyb našich ratolestí.
Součástí bytové jednotky je sklepní koje, k dispozici v suterénu domu je nově zřízená kolárna.
Nízké náklady v celkové výši 3. 500 Kč a přijatelná cena nemovitosti nabízí možnost pořízení si vlastního bydlení, místa k rekreaci nebo investiční příležitosti.
V případě Vašeho zájmu o více informací a domluvení si nezávazné prohlídky mne neváhejte kontaktovat.
S financováním rádi pomůžeme prostřednictvím našich finančních specialistů.
| Cena: |
(za nemovitost) 3 080 000,- Kč
(Včetně právního servisu, poplatků a provize RK, cena k jednání)
|
|---|
| Dispozice bytu | 2+1 |
|---|---|
| Číslo podlaží v domě | 3 |
| Počet podlaží objektu | 6 |
| Celková podlahová plocha | 67 m² |
| Druh objektu | panelová |
| Stav objektu | velmi dobrý |
| Energetická třída | G - Mimořádně nehospodárná |
| Vlastnictví | osobní |
| Počet podlaží pod zemí | 1 |
| Lodžie | 4 m² |
| Plocha sklepu | 3 m² |
| Vybavení | lodžie sklep |
| Umístění objektu | centrum |
| Telekomunikace | Internet |
| Ostatní rozvody | Kabelové rozvody |
| Topení | Ústřední - plynové Ústřední - dálkové |
| Doprava | silnice MHD autobus |
| Voda | dálkový vodovod |
| Odpad | Městská kanalizace |
| Plyn | Zaveden |
| Celková plocha | 67 m² |
| Ostatní | Parkoviště |
| Užitná plocha | 61 m² |
| Komunikace | asfaltová |
| Inženýrské sítě | Vodovod Kanalizace Plyn |
| Charakter okolní zástavby | obchodní a obytná |
| Poloha objektu | řadový |




