| Číslo zakázky: | 654118 | ![]() Karta nemovitosti |
|---|---|---|
| Typ zakázky: | prodej |
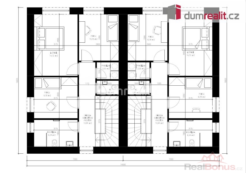
Cena včetně výstavby domu na klíč č.3, pozemku a DPH. Garance ceny! VOLNÝ!, Dumrealit.cz Vám zprostředkuje výstavbu patrového domu 4+kk o užitné ploše 118 m v provedení na klíč s pozemkem v Kostelci u Zlína. Součástí ceny bude dům, pozemek č.3 o velikosti 484 m (šíře 10,5 m a délka cca 46 m), příprava pozemku pro stavbu, připojení domu na inženýrské sítě, přípojné místo NN, retenční nádrž a parkovací místo o velikosti 36m. Součástí stavby bude také opěrná zeď mezi domy, která má účel jednak udržet zeminu pro případné boční parkování s možnou dostavbou krytého parkovacího stání, dále snadný vstup na zahradu a zároveň bude sloužit jako částečné oplocení po konec samotného domu. Dům bude realizován jako dvojdomek. Zastavěná plocha jednodomku je 74 m s užitnou plochou 118m. Prodej pozemků bez výstavby není možný. Pozemky jsou již rozděleny na 6 samostatných pozemků a můžete si tak pozemek rezervovat a kupovat, zároveň nechat připravit smlouvu o dílo s položkovým rozpočtem. V projektu jsou možné variabilní úpravy dispozice (posuny příček, oken). Patrový dům je ideální pro 5 člennou rodinu s nízkými provozními náklady. Uvedená cena je za pozemek, kompletní stavbu domu v provedení na klíč, projektové dokumentace, vyřízení stavebního povolení, základové desky až po kolaudaci. V uvedené ceně můžete počítat také s finálními povrchovými úpravami exteriéru i interiéru, a to včetně elektroinstalací, sanitárního vybavení s bateriemi, interiérovými dveřmi včetně obložek a vytápění bude řešeno teplovodním podlahovým topením v kombinaci tepelného čerpadla se 180L zásobníkem na teplou vodu. Dle dohody změníme systém vytápění nebo vystavíme komín pro krbové kamna nebo pro využití krbové vložky. Kryté garážové stání spojené s domem nebo venkovní krytou či nekrytou terasu za příplatek. Nekrytá terasa o velikosti 22,4 m spojena přímo s domem vychází na 374.000,-Kč. Pro náročnější klienty máme nabídku nadstandardního vybavení chytré domácnosti, klimatizaci, externí žaluzie, rolety, rekuperaci nebo fotovoltaiku. Doba výstavby cca 12-14 měsíců od vydání stavebního povolení a stavbu zahájíme do 10 dnů od jeho vydání. Smlouvy o dílo zašleme na vyžádání včetně položkového rozpočtu. 4. září 2024, došlo k podpisu smlouvy o přeložce distribuční soustavy se společností EG.D. a budou zahájeny následné kroky pro změnu vedení a umístění vysokého napětí. Přes pozemek nepovede žádné vysoké napětí. Domy č.1 a č.2 jsou právě ve výstavbě. Přijděte se podívat na první rozestavěný dům, který už má své kupce. Více u makléře. Ev. číslo: 653504. Energetický štítek: A (49 kWh/m2/rok).
| Cena: |
(za nemovitost) 10 062 550,- Kč
(Cena včetně výstavby domu na klíč č.3, pozemku a DPH. Garance ceny! VOLNÝ!)
|
|---|
| Počet podlaží objektu | 2 |
|---|---|
| Celková podlahová plocha | 118 m² |
| Druh objektu | cihlová |
| Stav objektu | ve výstavbě (hrubá stavba) |
| Energetická třída | A - Mimořádně úsporná |
| Vlastní pozemek | 484 m² |
| Umístění objektu | klidná část obce |
| Počet míst k parkování | 2 |
| Zastavěná plocha | 74 m² |
| Užitná plocha | 118 m² |
| Poloha objektu | řadový |
