| Číslo zakázky: | 654564 | ![]() Karta nemovitosti |
|---|---|---|
| Typ zakázky: | prodej |
Cena včetně pozemku, projektu, stavebního povolení, výstavby domu na klíč, kolaudace a parkování. DP, Váš nový domov ve Zlíně. Kde se historie potkává s moderním životem!
Představte si domov, který v sobě nese duši Zlína, ale zároveň nabízí komfort a efektivitu 21. století.
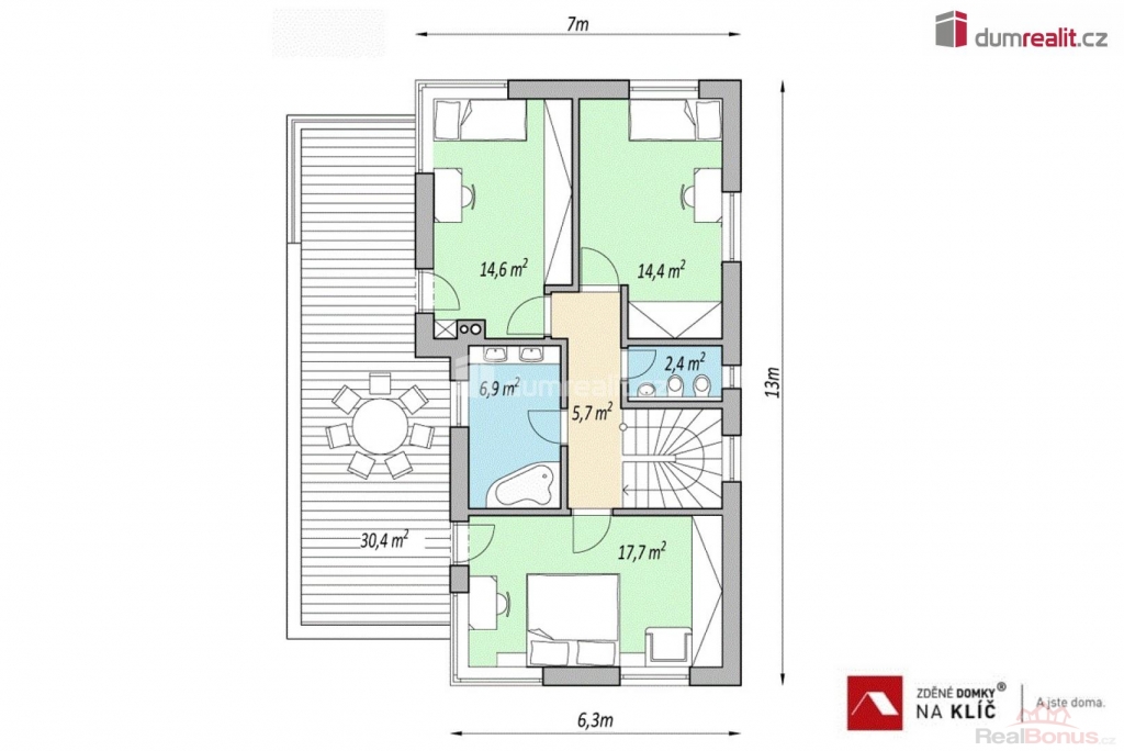
Přesně takový je náš nový patrový dům 5+kk na klíč, inspirovaný nadčasovou elegancí.
Je to perfektní útočiště pro Vaši až pětičlennou rodinu, kde se budete cítit hrdě a spokojeně.
Zapomeňte na starosti s výstavbou!
Stavební povolení je již v ruce a my startujeme do 30 dnů, abychom Vám předali klíče od Vašeho vysněného domova za pouhých 12-14 měsíců.
Komfort na klíč. Od A do Z. Užijte si bydlení bez kompromisů, kde je myšleno na každý detail.
V ceně se základní fasádou, projekt, základová deska, veškeré přípojky, až po kolaudaci a finální úpravy.
Prostorný a efektivní dům s užitnou plochou 149 m pro Vaši rodinu s nízkými provozními náklady.
Vlastní pozemek 400 m v soukromí a pohodlné parkovací stání 36 m.
Moderní Technologie pro Váš Klid. V interiéru na Vás čeká to nejlepší z moderních technologií.
Ekologické a úsporné vytápění: Teplovodní podlahové topení v celém domě, poháněné tepelným čerpadlem se 180 L zásobníkem na teplou vodu. Pocit tepla a komfortu po celý rok.
Vysoký standard vybavení: Kvalitní elektroinstalace, kompletní sanitární vybavení s moderními bateriemi, a elegantní interiérové dveře s obložkami.
Přizpůsobte si své sny. Flexibilita dispozice: Možnost posunu příček a individuálních úprav již ve fázi projektu.
Vytápění na míru. Dle dohody změníme systém vytápění nebo vystavíme komín pro krbová kamna/vložku pro útulné večery.
Pro maximální pohodlí a luxus si můžete dům rozšířit o kryté garážové stání propojené s domem a stylovou terasu krytou či nekrytou za příplatek.
Nadstandardní výbavu: Chytrou domácnost, klimatizaci, rekuperaci, externí žaluzie/rolety nebo fotovoltaiku pro ještě větší úspory a komfort.
Tento dům není jen stavba, je to životní styl. Spojení tradiční zlínské estetiky s moderními technologiemi a nízkými náklady.
Nenechte si ujít tento jedinečný domov! Podívejte se sami! Srdečně Vás zveme na prohlídku pozemků a našich již realizovaných staveb, kde se na vlastní oči přesvědčíte o kvalitě a smyslu pro detail.
Kontaktujte našeho makléře ještě dnes a udělejte první krok k Vašemu novému domovu ve Zlíně! Ev. číslo: 653950. Energetický štítek: A (49 kWh/m2/rok).
| Cena: |
na vyžádání v RK (Cena včetně pozemku, projektu, stavebního povolení, výstavby domu na klíč, kolaudace a parkování. DP)
|
|---|
| Počet podlaží objektu | 2 |
|---|---|
| Celková podlahová plocha | 149 m² |
| Druh objektu | cihlová |
| Stav objektu | ve výstavbě (hrubá stavba) |
| Energetická třída | A - Mimořádně úsporná |
| Vlastní pozemek | 400 m² |
| Počet míst k parkování | 2 |
| Zastavěná plocha | 111 m² |
| Užitná plocha | 149 m² |
| Poloha objektu | v bloku |
