| Číslo zakázky: | XA-471 | ![]() Karta nemovitosti |
|---|---|---|
| Typ zakázky: | pronájem |
Dobrý den, hledáte pronájem rodinného domu v Pardubicích a blízkém okolí? Máte pocit, že nabídka je malá nebo Vám nepadla do vkusu?
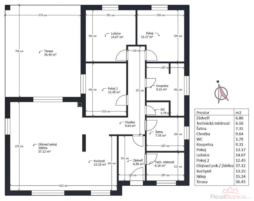
Připravili jsme pro Vás pronájem novostavby rodinného domu 4+kk o ploše 131 m2 + zastřešená terasa 36,45 m2. Tento světlý a prostorný dům se nachází v obci Mikulovice u Pardubic. Dominantou je velký obývací pokoj propojený s kuchyňským koutem. Kuchyňský kout je zařízený potřebnými spotřebiči (lednička s mrazákem, pečící a mikrovlnná trouba, varná deska, odsavač par, myčka nádobí).
Dispozice domu obsahuje 3 samostatné pokoje, dominantní obývací pokoj (jak bylo uvedeno), technickou místnost, prostornou koupelnu s vanou i sprchovým koutem, samostatné WC a šatnu, ze které může být pracovna. A pro milovníky venkovního posezení jsou zde dvě terasy, jedna zastřešená a jedna nezastřešená obě s krásným výhledem na Pardubice a při dobré viditelnosti i mnohem dále. Díky umístění ve svahu je k dispozici sklep o výměře 35 m2.
Kaskádovitá zahrada se právě dokončuje, ale to nebrání v pronájmu domu. Díky velmi dobrému zateplení a způsobu vytápění tepelným čerpadlem vzduch - voda s podlahovým systémem se očekávají i nízké náklady na bydlení. To vše je podpořeno vlastní studnou, která dodává vodu do celého domu, vyjma kuchyňského koutu, který je napojen na obecní vodovod. Odpady jsou řešeny prostřednictvím vlastní ČOV. Dále je na zahradě retenční nádrž o objemu 8 m3 na sběr dešťové vody pro zalévání zahrady.
Před domem se nachází zpevněné parkovací stání pro 4 osobní vozidla a další dvě stání, například pro návštěvu.
Pokud jste rodina, která hledá větší životní prostor v kombinaci komfortního bydlení, velké zahrady a dobré dopravní dostupnosti do Pardubic i Chrudimi. Mohla by být tato nabídka pro Vás zajímavá.
Výše nájmu činí 30.000 Kč + 3.500 Kč zálohy na energie a služby spojené s užíváním domu. Peněžitá jistota (vratná kauce) činí 67.000 Kč. Provize RK je ve výši 25.000 Kč.
Volný ihned.
Děkuji za pozornost a budu se těšit na osobní setkání spojené s prohlídkou. Václav Růžička, realitní specialista.
Pronajímatel si vyhrazuje právo vybrat nájemce podle jím zvolených kritérií.
| Cena: |
(za měsíc) 30 000,- Kč
(+ 3.500 Kč záloha na energie a služby)
|
|---|
| Číslo podlaží v domě | 1 |
|---|---|
| Počet podlaží objektu | 1 |
| Druh objektu | cihlová |
| Stav objektu | novostavba |
| Počet podlaží pod zemí | 1 |
| Vlastní pozemek | 1 213 m² |
| Vybavení | sklep |
| Umístění objektu | okrajová zástavba |
| Vybaveno | Částečně zařízeno |
| Topení | Jiné |
| Elektřina | 230 V |
| Zastavěná plocha | 200 m² |
| Plocha parcely | 1 213 m² |
| Plocha zahrady | 1 005 m² |
| Inženýrské sítě | Vodovod Elektřina |
| Druh stavby | rodinný dům, rekreační chalupa, rekreační pozemek |
| Poloha objektu | samostatný |
