| Číslo zakázky: | 18732 | ![]() Karta nemovitosti |
|---|---|---|
| Typ zakázky: | prodej |
Exkluzivně nabízíme novostavbu dvojdomu 5+kk, 106m2 + garáž a tech. místnost 24m2, terasa, zahrada 1035m2, Postupice, okr. Benešov. Představujeme Vám novostavbu hezkého a moderního dvojdomu, kde každá jednotka je s dispozicí 5+kk, užitnou plochou 106m2 s garáží a terasou a to vše na pozemku 1123m2. Dům se nachází v obci Postupice, jen 40min. od Prahy, nebo 10km od okresního města Benešov a je již téměř dokončen. K prodeji jsou obě poloviny nebo dům jako celek, první zájemce má výhodu volby strany která mu více vyhovuje.
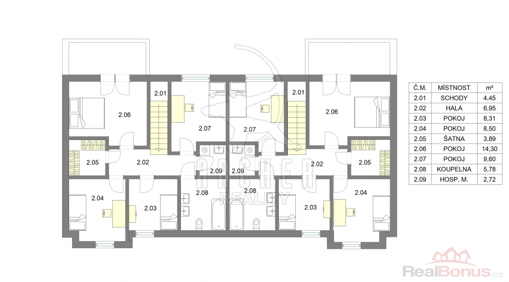
Dispozice přízemí: po vstupu do zádveří lze vstoupit do prostorného obývacího pokoje spojeného s kuchyňským koutem, odsud je i vstup na terasu a dále do zahrady. Přízemí nabízí i WC a možnost jít do garáže vnitřkem domu, což přináší spoustu výhod a praktického využití. Za garáží se nachází technická místnost s dalším vstupem na zahradu. V patře domu jsou dva větší a dva menší samostatné pokoje, dále šatna, technická místnost a koupelna se sprchovým koutem, vanou, dvěma umyvadly a WC.
Dům se nabízí bez vybavení, vytápění domu zajišťuje tepelné čerpadlo, v přízemí domu je podlahové topení, v patře jsou radiátory. V obývacím pokoji je navíc příprava na krbová kamna, komín je po revizi. Voda pro oba domy je zajištěná vrtem 40m hlubokým, každý dům je napojený na vlastní jímku 10m3, dále má každý dům nádrž na dešťovou vodu 9m3 a místo na parkování před domem. V budoucnu bude k domu přivedena přípojka na obecní vodovod.
V obci Postupice je velmi dobrá občanská vybavenost, je zde MŠ i ZŠ, obchody, pošta, sportoviště a další. Kompletní služby, úřady a nákupní možnosti najdete v Benešově, asi 10 minut vozidlem. V Benešově je i velmi dobré dopravní spojení vlakem nebo busem na Prahu i dalšími směry. V okolí Postupic je i mnoho lesů, rybníků, cyklostezek a dalších zajímavostí pro výlety a relaxaci.
V případě zájmu o prohlídku nebo dalších otázek nás neváhejte kontaktovat, rádi Vám pomůžeme vyřešit i financování nemovitosti.
| Cena: |
(za nemovitost) 10 400 000,- Kč
(kanalizace: 500, elektřina: 1000, voda: 500) (včetně provize)
|
|---|
| Počet podlaží objektu | 2 |
|---|---|
| Celková podlahová plocha | 126 m² |
| Druh objektu | cihlová |
| Stav objektu | novostavba |
| Energetická třída | C - Úsporná |
| Vlastní pozemek | 1 123 m² |
| Plocha teras | 20 m² |
| Umístění objektu | okrajová zástavba |
| Vybaveno | Částečně zařízeno |
| Zastavěná plocha | 88 m² |
| Užitná plocha | 106 m² |
| Plocha zahrady | 1 035 m² |
| Komunikace | neupravená |
| Poloha objektu | řadový |




