| Číslo zakázky: | 31731 | ![]() Karta nemovitosti |
|---|---|---|
| Typ zakázky: | prodej |
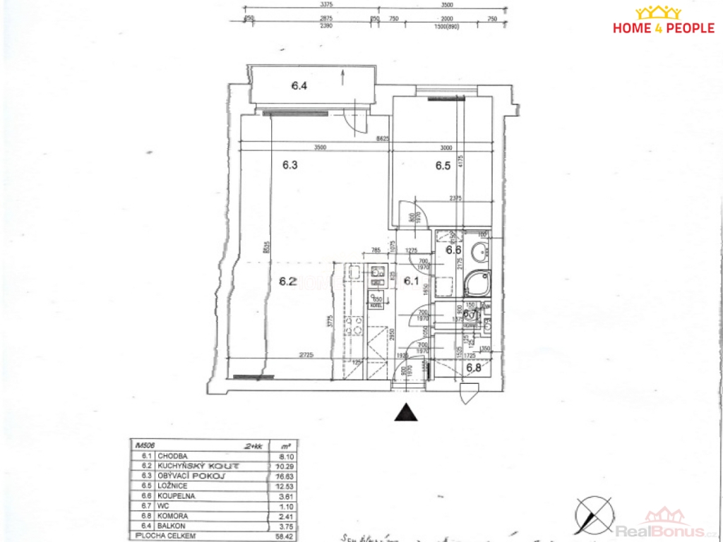
Cena je včetně provize RK, Nabízíme k prodeji moderní, nezařízený byt 2+kk s balkonem v žádané městské části Brno Slatina, ulice Ponětovická. Byt se nachází v 1. patře cihlového domu a jeho celková plocha činí 58m.
Dispozice bytu zahrnuje světlý obývací pokoj s kuchyňským koutem, samostatnou ložnici, prostornou koupelnu a předsíň s vestavěnou skříní. Kuchyňská linka je vybavena vestavěnými spotřebiči elektrická varná deska, trouba, lednice s mrazákem a myčka na nádobí.
Vytápění a ohřev teplé vody zajišťuje vlastní plynový kotel.
Byt je situován v klidné lokalitě s kompletní občanskou vybaveností v docházkové vzdálenosti. Velkou výhodou je výborná dostupnost MHD do centra města i blízkost CT parku v Brněnské průmyslové zóně.
Měsíční poplatky spojené s užíváním bytu jsou 4500,- Kč.
Nemovitost je ideální jako investice na pronájem, tak i k vlastnímu bydlení.
Cena je 7 900 000,- Kč včetně provize RK.
Uvolnění nemovitosti je možné od 1.5. 2026 Ev. číslo: 31731. Energetický štítek: B (2147 kWh/m2/rok).
| Cena: |
(za nemovitost) 7 900 000,- Kč
(Cena je včetně provize RK) (včetně provize)
|
|---|
| Dispozice bytu | 2+kk |
|---|---|
| Číslo podlaží v domě | 1 |
| Počet podlaží objektu | 3 |
| Celková podlahová plocha | 58 m² |
| Druh objektu | cihlová |
| Stav objektu | novostavba |
| Energetická třída | B - Velmi úsporná |
| Vlastnictví | osobní |
| Vybavení | balkon |
| Vybaveno | Nezařízeno |
| Užitná plocha | 58 m² |




