| Číslo zakázky: | 53335 | ![]() Karta nemovitosti |
|---|---|---|
| Typ zakázky: | prodej |
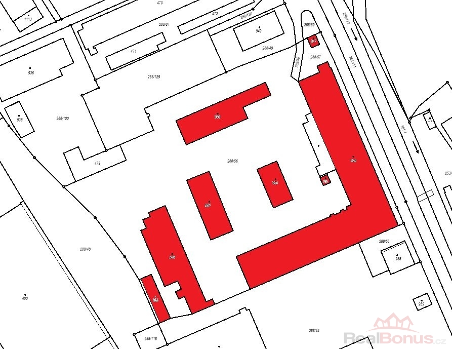
VEŘEJNÁ DRAŽBA ? předmětem dražby je soubor 8 budov (staveb) ve výrobně skladovacím areálu; podlahová plocha 5239 m2, část Semtín, Pardubice
Veškeré podrobné informace vč. popisů, informačního memoranda, znaleckého posudku a dalších jsou k dispozici na www.verejnedrazby.cz/A7842, kde tato elektronická dražba probíhá.
Budovy (stavby) jsou situovány v areálu průmyslové zóny, kde dominantní část tvoří areál společnosti Synthesia, a.s. Stavby jsou umístěny na pozemcích ve vlastnictví společnosti Synthesia, a.s. a tvoří relativně samostatný soubor uvnitř průmyslové zóny, který ale není od okolních staveb v areálu nijak oddělen. Lokalita se nachází v jihozápadní části průmyslové zóny, nedaleko od oblouku komunikace č. 211, která v této části vytváří hranici průmyslové zóny. Komunikace je vedena z Pardubic severozápadním směrem do města Lázně Bohdaneč a následně do Chlumce nad Cidlinou.
Předmět dražby:
Předmětem veřejné dražby jsou věci nemovité se všemi součástmi a příslušenstvím, a to:
- stavba v části obce Semtín č.p. 273, výroba, stavba stojí na pozemku parc.č. St. 946, zastavěná plocha a nádvoří (LV 312),
- stavba bez čp/če, výroba, stavba stojí na pozemku parc.č. St. 947, zastavěná plocha a nádvoří (LV 312),
- stavba bez čp/če, výroba, stavba stojí na pozemku parc.č. St. 948, zastavěná plocha a nádvoří (LV 312),
- stavba bez čp/če, výroba, stavba stojí na pozemku parc.č. St. 949, zastavěná plocha a nádvoří (LV 312),
- stavba bez čp/če, výroba, stavba stojí na pozemku parc.č. St. 951, zastavěná plocha a nádvoří (LV 312),
- stavba bez čp/če, výroba, stavba stojí na pozemku parc.č. St. 953, zastavěná plocha a nádvoří (LV 312),
- stavba bez čp/če, výroba, stavba stojí na pozemku parc.č. St. 955, zastavěná plocha a nádvoří (LV 312),
- stavba bez čp/če, výroba, stavba stojí na pozemku parc.č. St. 956, zastavěná plocha a nádvoří (LV 312)
to vše zapsáno v katastru nemovitostí na listu vlastnictví č. 551 v katastrálním území Semtín, obec Pardubice, u Katastrálního úřadu pro Pardubický kraj, katastrální pracoviště Pardubice (veškeré shora uvedené nemovité věci se všemi součástmi a příslušenstvím.
Navrhovatel upozorňuje, že k předmětu veřejné dražby má ve smyslu ust. § 3056 odst. 1 občanského zákoníku zákonné předkupní právo vlastník pozemků parc.č. St. 946, St. 947, St. 948, St. 949, St. 951, St. 953, St. 955 a St. 956, zapsaných na LV č. 312 pro k.ú. Semtín, obec Pardubice, neboť na těchto pozemcích stojí stavby, jež tvoří Předmět veřejné dražby, přičemž tyto stavby nejsou součástí citovaných pozemků, zapsaných na LV č. 312 pro k.ú. Semtín, obec Pardubice.
Datum zahájení veřejné dražby: 15.4.2026
Čas zahájení veřejné dražby: 13:00 hod.
Datum ukončení veřejné dražby: 15.4.2026
Čas ukončení veřejné dražby: 14:00 hod.
(automatické prodlužování o 3 min. v případě příhozu před stanoveným koncem dražby - viz. dražební vyhláška)
Vyvolávací cena: 20.230.000,- Kč (slovy: dvacet milionů dvě stě třicet tisíc korun českých)
Obvyklá cena předmětu veřejné dražby: 28.900.000,- Kč (slovy dvacet osm milionů devět set tisíc korun českých)
Výše dražební jistoty: 1.000.000,- Kč (slovy: jeden milion korun českých)
Minimální příhoz: 10.000,- Kč (slovy: deset tisíc korun českých).
| Cena: | (za nemovitost) 20 230 000,- Kč |
|---|
| Druh objektu | cihlová |
|---|---|
| Stav objektu | dobrý |
| Energetická třída | G - Mimořádně nehospodárná |
| Účel budovy | Výroba |
| Užitná plocha | 5 239 m² |




