| Číslo zakázky: | 5430L005 | ![]() Karta nemovitosti |
|---|---|---|
| Typ zakázky: | pronájem |
Hledáte prostory, které podpoří růst vaší firmy a budou dobře dostupné pro zaměstnance i klienty? Nabízíme k pronájmu krásné kancelářské prostory o celkové ploše 236 m2 na ulici Sekaninova v městské části Brno-Husovice.
V blízkosti nově vzniká čtvrť v bývalém areálu Zbrojovky, což významně zvyšuje atraktivitu místa.
Prostory se nachází v zavedené administrativní budově v 1.patře a díky své velikosti a variabilní dispozici jsou ideální jako firemní sídlo, školicí centrum, projekční ateliér či IT centrum.
Díky stávajícímu vybavení můžete podnikání rozjet prakticky okamžitě.
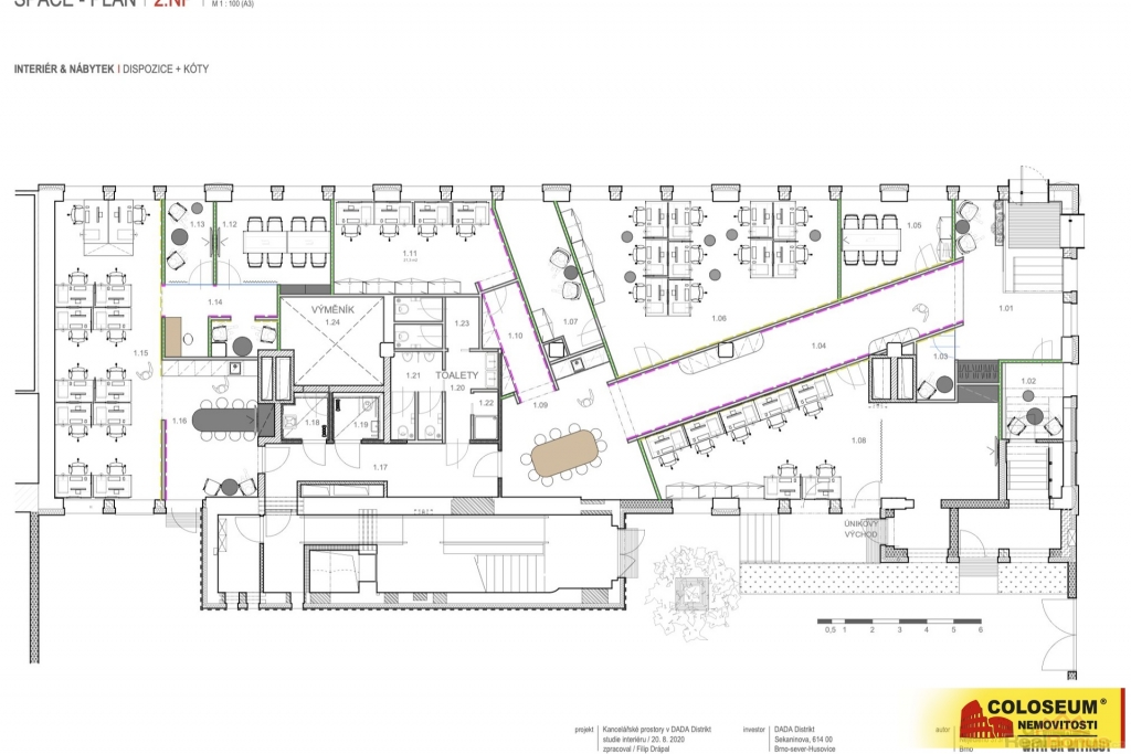
Dispozice umožňuje kombinaci samostatných kanceláří o velikostech cca 49 m2, 47,5 m2 a 11,4 m2, dále zasedacích místností o výměrách cca 6,3 m2 a 13,5 m2, call roomu o velikosti 3 m2, prostorné kuchyňky o ploše cca 21,1 m2 a vstupního zádveří se zázemím o velikosti přibližně 23 m2. Součástí jsou také vlastní sociální zařízení a chodby o celkové ploše cca 62,3 m2.
Dispoziční řešení umožňuje kombinaci samostatných kanceláří, otevřeného pracovního prostoru, zasedací místnosti i pohodlného zázemí pro zaměstnance. Prostory jsou světlé, flexibilně uspořadatelné a působí velmi reprezentativně.
Lokalita Husovice patří k velmi dobře dostupným částem Brna s rychlým napojením na centrum i hlavní tahy.
Kanceláře jsou k nastěhování od 1. dubna 2026, případně dle dohody. Měsíční nájemné činí 49 000 Kč, zálohy na služby se pohybují přibližně v rozmezí 13 000 až 15 000 Kč měsíčně bez DPH v závislosti na spotřebě. K nájmu je nutné připočítat provizi realitní kanceláře.
Kontaktujte nás pro více informací či sjednání prohlídky, rádi Vám prostory osobně představíme.
| Cena: | (za měsíc) 49 000,- Kč |
|---|
| Číslo podlaží v domě | 1 |
|---|---|
| Počet podlaží objektu | 4 |
| Celková podlahová plocha | 1 600 m² |
| Druh objektu | cihlová |
| Stav objektu | velmi dobrý |
| Energetická třída | G - Mimořádně nehospodárná |
| Bezbariérový byt | ano |
| Umístění objektu | centrum |
| Voda | dálkový vodovod |
| Celková plocha | 1 600 m² |
| Zastavěná plocha | 400 m² |
| Ostatní | Bezbariérový přístup Parkoviště |
| Užitná plocha | 236 m² |
| Plocha kanceláří | 237 m² |
| Inženýrské sítě | Vodovod |
| Charakter okolní zástavby | komerční |
| Poloha objektu | samostatný |
| Počet kanceláří | 3 |
| Druh prostor | Kanceláře |
| K dispozici od | 01.04.2026 |
