| Číslo zakázky: | BM25022 | ![]() Karta nemovitosti |
|---|---|---|
| Typ zakázky: | prodej |
Bydlení, které nabízí rovnováhu mezi rušným městským životem a klidem přírody.
Nabízíme k prodeji moderní byt v novostavbě polyfunkčního bytového domu ve vyhledávané lokalitě Brno ? Pisárky. Městská část Pisárky kombinuje blízkost centra města s možnostmi pro relaxaci a aktivní trávení volného času. Architektonické řešení bytového domu je zaměřené na moderní a kvalitní bydlení. Bytová jednotka je navržena s maximálním využitím prostoru. Otevřená dispozice s propojenou kuchyní a obývacím pokojem vytváří příjemné prostředí. Velkorysá terasa poskytuje prostor pro relaxaci.
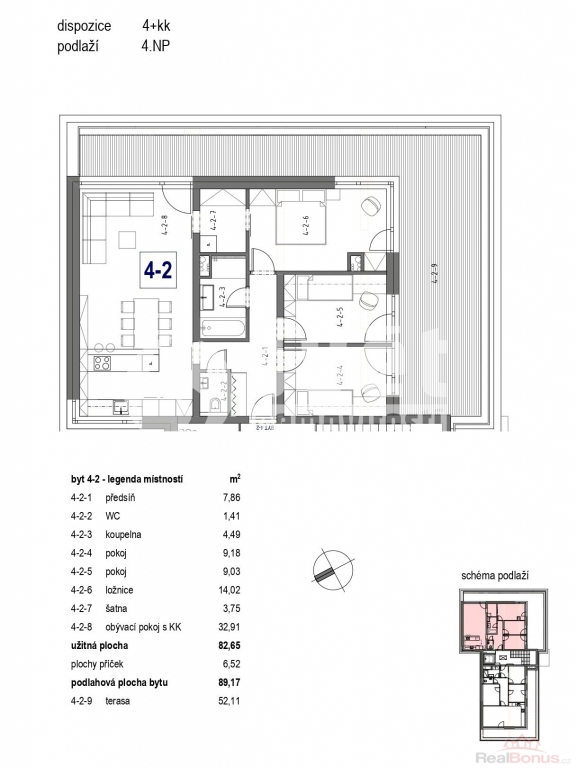
Bytová jednotka dispozice 4+kk je umístěná ve 4.NP. Podlahová plocha bytu je 89,17 m2 + terasa o ploše 52,11 m2. K bytu je možnost dokoupení sklepní kóje, parkovacího stání před objektem nebo krytého, parkovacího stání / garáže.
Finální výběr obkladů, dlažeb, sanitární keramiky a dekoru podlahy si klient může vybrat dle svých představ. V standardu bytu nabízíme obklady a dlažby série Rako Onyx nebo Rako Random a sanitární keramiku Laufen. Součástí standardu jsou interiérové dveře výšky 2,1 m, s bezfalcovou zárubní, bílé barvy, dřevěná Euro okna s izolačním trojsklem. Součástí bytové jednotky je chlazení klimatizaci, větrání pomocí vzduchotechniky s rekuperací a podlahové topení.
Přijde si prohlédnout nové byty a prostředí, kde se budete cítit jako doma. Zjistěte, zda je to to pravé místo pro vaše bydlení nebo atraktivní investiční možnost. Neváhejte mě kontaktovat na tel. č. 604 211 462.
| Cena: | (za nemovitost) 16 320 000,- Kč |
|---|
| Dispozice bytu | 4+kk |
|---|---|
| Číslo podlaží v domě | 4 |
| Počet podlaží objektu | 5 |
| Celková podlahová plocha | 83 m² |
| Druh objektu | cihlová |
| Stav objektu | novostavba |
| Energetická třída | A - Mimořádně úsporná |
| Vlastnictví | osobní |
| Počet podlaží pod zemí | 1 |
| Plocha teras | 57 m² |
| Bezbariérový byt | ano |
| Vybavení | terasa |
| Stáří objektu | 3 |
| Rok kolaudace | 2 025 |
| Ostatní | Bezbariérový přístup |
| Užitná plocha | 83 m² |




