| Číslo zakázky: | 233775 | ![]() Karta nemovitosti |
|---|---|---|
| Typ zakázky: | pronájem |
Nabízíme k pronájmu komerční jednotku 148 m2, určenou pro malé a střední firmy, které potřebují kombinaci skladových prostor a kancelářského zázemí. Jednotka je součástí moderního projektu GL Park Pardubice, navrženého jako soubor samostatných nebytových jednotek s vlastním parkováním a profesionální správou areálu.
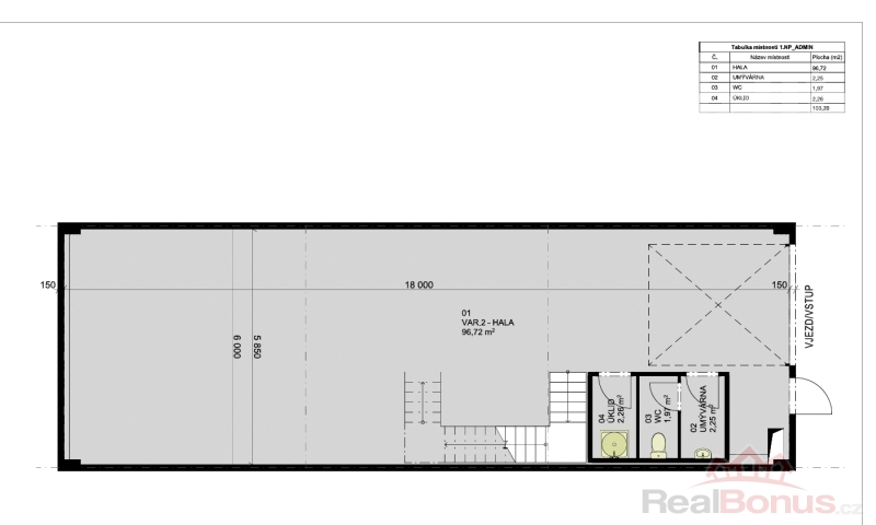
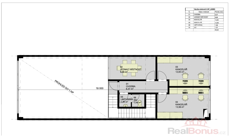
Jednotka má celkovou plochu cca 148 m2 a je dispozičně řešena ve dvou podlažích. V 1. NP se nachází skladová hala s technickým a sociálním zázemím o velikosti 103 m2. Ve 2. NP je vyhrazeno administrativní části, kde jsou tři samostatné kanceláře, chodba a sociální zázemí o celkové velikosti 45 m2. Toto uspořádání umožňuje jasné oddělení provozu od administrativy a vytváří komfortní pracovní prostředí.
Objekt je postaven jako prefabrikovaná železobetonová konstrukce opláštěná panely Kingspan. Podlaha v hale je z drátkobetonu s vysokou únosností až 8 000 kg/m2 vhodná i pro náročnější provoz. Součástí jednotky jsou sekční garážová vrata, plastová okna, ocelové vstupní dveře a kompletní elektroinstalace včetně třífázového přívodu 50 A, vlastního měření a přípravy na wallbox. Vytápění je řešeno tepelným čerpadlem vzduch/voda, připravena je také příprava na fotovoltaiku. Do jednotky je přiveden optický internet.
Velkou výhodou je dokončení jednotky dle individuálních požadavků budoucího nájemce, a to přímo na míru konkrétnímu provozu - dispoziční úpravy, vybavení kanceláří, povrchy, technologie či další technické řešení lze po dohodě přizpůsobit potřebám zájemce.
K jednotce náleží 2 parkovací stání přímo před objektem, další parkovací místa jsou k dispozici v rámci areálu. Areál má komunikace o šířce 6 m a je spravován společností GL Park Pardubice s.r.o., která zajišťuje údržbu, úklid, ostrahu a vyúčtování služeb.
Tyto prostory nabízejí nejlepší poměr ceny a funkce v rámci projektu a je ideální volbou pro firmy, které hledají dlouhodobé, reprezentativní a flexibilní zázemí pro své podnikání.
Pro více informací o nájemném, službách a podmínkách pronájmu, případně o dokončení jednotky na míru, nebo pro sjednání prohlídky nás neváhejte kontaktovat.
| Cena: |
(za měsíc) 37 500,- Kč
(+energie a služby)
|
|---|
| Druh objektu | montovaná |
|---|---|
| Stav objektu | novostavba |
| Energetická třída | B - Velmi úsporná |
| Vlastnictví | osobní |
| Celková plocha | 148 m² |
| Účel budovy | Sklad |
| Vybavení komerčních prostor | ano |
| Užitná plocha | 148 m² |
| Plocha kanceláří | 45 m² |
| Druh prostor | Skladovací |
| K dispozici od | 31.12.2026 |
