| Číslo zakázky: | PP7630226 - Ve struh | ![]() Karta nemovitosti |
|---|---|---|
| Typ zakázky: | pronájem |
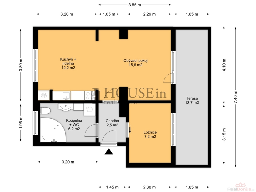
Nabízíme vám k dlouhodobému pronájmu byt 2+1 po rekonstrukci o výměře 45 m2 s prostornou terasou 14 m2, který se nachází ve 3. (posledním) patře cihlového zatepleného bytového domu v ulici Ve struhách, Praha 6 ? Bubeneč. Lokalita nabízí klidné bydlení s výbornou dostupností do centra města. V docházkové vzdálenosti se nachází vlaková zastávka Praha-Podbaba, tramvajová zastávka Čínská a oblíbený park Stromovka.
Dispozice a vybavení bytu
Byt tvoří předsíň, ložnice, obývací pokoj, samostatná kuchyně a koupelna. Kuchyň je vybavena kuchyňskou linkou a novými spotřebiči ? elektrickým sporákem s troubou, indukční varnou deskou, lednicí s mrazákem a digestoří.
Z obývacího prostoru je přímý vstup na prostornou terasu o výměře 14 m2, která poskytuje příjemné místo k posezení a výhled.
Koupelna disponuje rohovou vanou a toaletou a pračkou.
K bytu náleží sklep o celkové výměře cca 5 m2 v 1. podzemním podlaží domu, přičemž k užívání je vyhrazena jeho část (zbývající část slouží k uložení věcí majitele).
Technické informace
Vytápění bytu a ohřev teplé vody zajišťuje moderní plynový kotel. Na podlahách jsou parkety, plovoucí podlaha a dlažba. V bytě je možnost připojení k internetu a k televizním službám O2 nebo Vodafone.
Dopravní dostupnost
Výborná dopravní dostupnost do centra Prahy i na letiště. V krátké pěší vzdálenosti se nachází tramvajové zastávky Čínská a Zelená, autobusová zastávka Čínská a vlaková stanice Praha-Podbaba. Rychlé spojení zajišťuje metro A ? stanice Dejvická i Hradčanská, stejně jako pohodlné napojení na městský okruh.
Občanská a sportovní vybavenost
V okolí se nachází kompletní občanská vybavenost ? obchody s potravinami, restaurace, kavárny, lékárna, pošta, školy a školky. Milovníci sportu a relaxu ocení blízkost parku Stromovka, cyklostezek podél Vltavy, sportovišť v Podbabě a fitness center v okolí.
Podmínky pronájmu
Byt je vhodný pro jednotlivce nebo pár, případně menší rodinu, bez domácích zvířat.
Vratná kauce činí 30.000 Kč.
Provize realitní kanceláře: 25.000 Kč.
Byt je volný ihned.
Kontakt
Byt je k dispozici ihned. Pro více informací nebo sjednání prohlídky kontaktujte makléře. V případě nedostupnosti telefonu je možné zaslat SMS nebo e-mail, a to i ve večerních hodinách či o víkendu.
| Cena: |
(za měsíc) 23 500,- Kč
(+ poplatky 1.500 Kč/2os (vodné, stočné, domovní služby) + elektřina a plyn 2.500 Kč (zálohy), + provize RK)
|
|---|
| Dispozice bytu | 2+1 |
|---|---|
| Číslo podlaží v domě | 4 |
| Celková podlahová plocha | 59 m² |
| Druh objektu | cihlová |
| Stav objektu | velmi dobrý |
| Energetická třída | C - Úsporná |
| Vlastnictví | osobní |
| Plocha teras | 14 m² |
| Plocha sklepu | 5 m² |
| Vybavení | terasa sklep |
| Umístění objektu | centrum |
| Telekomunikace | Internet |
| Ostatní rozvody | Kabelová televize |
| Topení | Ústřední - plynové |
| Doprava | vlak MHD |
| Odpad | Městská kanalizace |
| Plyn | Zaveden |
| Celková plocha | 59 m² |
| Užitná plocha | 45 m² |
| Komunikace | asfaltová |
| Inženýrské sítě | Kanalizace Plyn |
| Charakter okolní zástavby | obytná |
| Poloha objektu | v bloku |
| K dispozici od | 16.02.2026 |




