| Číslo zakázky: | 653929 | ![]() Karta nemovitosti |
|---|---|---|
| Typ zakázky: | prodej |
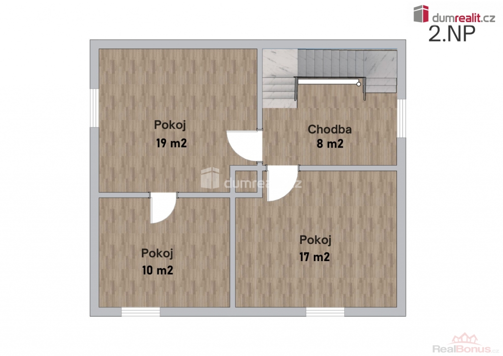
, možný prodej rodinného domu v části obce Čerčany- Vysoké Lhotě. Dům leží v klidné části obce. Dům pochází z 40. let 20. století. Je zděný a podsklepený s obytným podkrovím. Vytápění domu je zajištěno kotlem na tuhá paliva-uhlí z roku 2022 OPOP H412 EKO-U, emisní třída 5. Ohřev vody pak el. bojler. Celková podlahová plocha sklepu je cca 50 m. V 1.NP domu, které je přístupné po schodišti přes praktické zádveří je řešeno dispozičně jako 3+kk se samostatným wc a koupelnou. Plocha tohoto podlaží je cca 54 m. Podkroví je částečně obytné. Všechna patra jsou přístupné vnitřním schodištěm. Okna jsou klasická špaletová. Do domu je přivedena elektřina, voda, kanalizace. Plyn je na hranici pozemku. Na zahradě o velikosti 640 m je garáž, sklep (krecht) a studna. Ta je sdílená se sousedním domem. Práva čerpat vodu je zajištěno věcným břemenem braní vody. Zahrada je okrasná, oplocená. Prostor ke garáži je zpevněn dlažbou. Vjezd je opatřen branou s el. pohonem. Dům je vhodný k rekonstrukci. Pro bližší informace volejte makléře. Prohlídky jsou možné po dohodě. Ev. číslo: 653315. Energetický štítek: G
| Cena: | (za nemovitost) 8 500 000,- Kč |
|---|
| Počet podlaží objektu | 2 |
|---|---|
| Celková podlahová plocha | 130 m² |
| Druh objektu | smíšená |
| Stav objektu | před rekonstrukcí |
| Energetická třída | G - Mimořádně nehospodárná |
| Vlastní pozemek | 934 m² |
| Umístění objektu | klidná část obce |
| Zastavěná plocha | 80 m² |
| Užitná plocha | 130 m² |
| Poloha objektu | v bloku |




