| Číslo zakázky: | D/RSB/183/23-16 | ![]() Karta nemovitosti |
|---|---|---|
| Typ zakázky: | prodej |
Nabízíme Vám k prodeji tento zcela nový moderní byt 1+kk s balkonem v klidné lokalitě Brna - v Černovicích.
Byt se nachází v rezidenčním projektu na Faměrově náměstí. Tento uzavřený bytový komplex nabízí dokonalou kombinaci soukromí, komfortu a výborné dostupnosti do centra Brna, které je vzdálené pouhých 10 minut.
Charakteristika bytu:
Dispozice: 1+kk
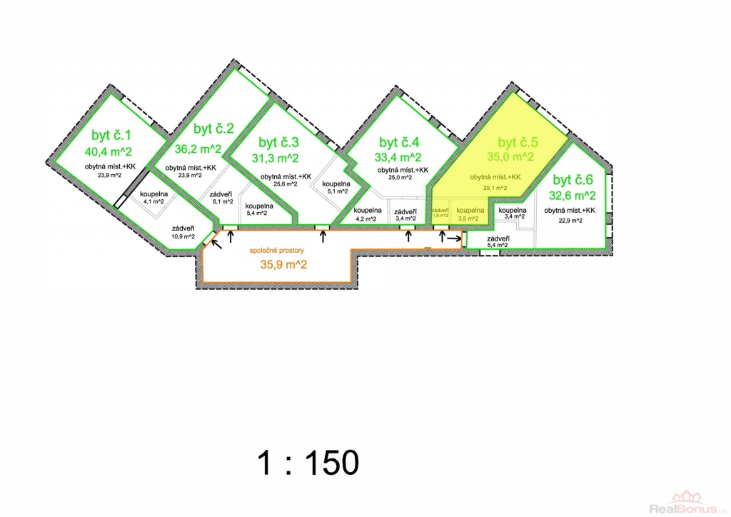
Celková podlahová plocha: 35,0 m2
Obytná místnost s kk: 29,1 m2
Koupelna: 3,5 m2
Zádveří: 1,6 m2
Balkon: 6 m2
Sklep: 2 m2
Kvalitní vybavení a moderní prvky:
Okna: Plastová okna Synego s trojsklem zajišťují vynikající tepelnou a zvukovou izolaci.
Podlahy: Vinylové podlahy Dub Granado Experto Click SPC 50 ? odolné, snadno udržovatelné a s dlouhou životností.
Obklady a dlažba: Luxusní velkoformátové dlaždice imitace mramoru a dřeva pro elegantní vzhled.
Vstupní dveře: Bezpečnostní dveře splňují třídu 3, certifikovanou dle platné normy, a zajišťují protihlukovou izolaci 44 dB, díky dvojitému těsnění a patentované konstrukci. Zároveň splňují protipožární třídu EI 30, což znamená, že dokáží zadržet požár mimo byt po dobu 30 minut.
Vytápění: plynová kotelna v domě; v bytech konvektory Koraline, které jsou oblíbené pro svou spolehlivost, nízké provozní náklady a komfort, který poskytují.
Rezidenční projekt se pyšní soukromými zahrádkami, prostornými balkony a možností parkovacího stání přímo u bytu. Klidná lokalita Černovic s výbornou dopravní dostupností do centra Brna z něj činí ideální místo pro pohodlné bydlení.
Tento byt je skvělou volbou jak pro vlastní bydlení, tak i jako výnosná investice do nemovitosti s atraktivním potenciálem pronájmu.
*Byt je těsně před dokončením ? aktuálně čekáme na dodání vstupních dveří. Fotografie jsou z obdobných bytů v projektu. Doporučujeme osobní prohlídku. Brzy spustíme nabídku šesti bytů 1+kk v cenové hladině do cca 5,5 mil. Kč.
Pro více informací nebo osobní prohlídku nás neváhejte kontaktovat.
| Cena: |
(za nemovitost) 5 200 000,- Kč
(včetně provize)
|
|---|
| Dispozice bytu | 1+kk |
|---|---|
| Číslo podlaží v domě | 3 |
| Počet podlaží objektu | 3 |
| Celková podlahová plocha | 35 m² |
| Druh objektu | cihlová |
| Stav objektu | velmi dobrý |
| Energetická třída | B - Velmi úsporná |
| Vlastnictví | osobní |
| Počet podlaží pod zemí | 1 |
| Plocha balkonu | 6 m² |
| Plocha sklepu | 2 m² |
| Vybavení | balkon sklep |
| Umístění objektu | centrum |
| Užitná plocha | 35 m² |
| Charakter okolní zástavby | obytná |
| Poloha objektu | řadový |




