| Číslo zakázky: | 362 | ![]() Karta nemovitosti |
|---|---|---|
| Typ zakázky: | prodej |
Prodáme rodinný dům, který prošel čerstvou a rozsáhlou kompletní rekonstrukcí v oblíbené obci Jeneč, pouhých pár minut od Prahy.
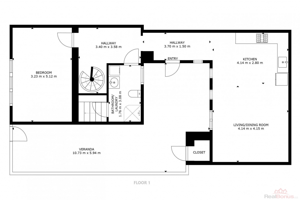
Dům má dvě podlaží, včetně plně obytného podkroví, užitnou plochu necelých 100 m a nabízí příjemné a pohodlné rodinné bydlení bez nutnosti dalších investic.
Součástí domu je také menší sklep o výměře cca 9,4 m, který slouží jako praktický úložný prostor.
Vše je připraveno k okamžitému nastěhování.
Rekonstrukce zahrnovala kompletně nové rozvody elektřiny i plynového topení, nové podlahy a omítky, moderní koupelnu, nové zateplení fasády (mimo uliční stranu) a novou střešní krytinu. Dům je napojen na všechny inženýrské sítě vodu, kanalizaci i plyn. Díky provedeným úpravám má nemovitost výrazně nižší energetickou. PENB se nyní vyřizuje.
Jeneč patří mezi vyhledávané lokality díky své poloze a rychlému spojení na Prahu. Na Zličín, letiště i dálnici D6 je to jen několik minut. V obci i v blízkém okolí najdete kompletní občanskou vybavenost školy, školky, obchody, služby, restaurace i sportovní vyžití. Dům se nachází v klidné části obce, což z něj dělá ideální místo pro rodinné bydlení.
Pro více informací o nemovitosti se na mě neváhejte obrátit.
Rád s vámi domluvím i osobní prohlídku.
| Cena: | (za nemovitost) 8 990 000,- Kč |
|---|
| Číslo podlaží v domě | 1 |
|---|---|
| Počet podlaží objektu | 2 |
| Celková podlahová plocha | 70 m² |
| Druh objektu | cihlová |
| Stav objektu | po rekonstrukci |
| Počet podlaží pod zemí | 1 |
| Vlastní pozemek | 124 m² |
| Vybavení | sklep |
| Umístění objektu | klidná část obce |
| Vybaveno | Možno zařídit |
| Topení | Ústřední - plynové |
| Elektřina | 230 V |
| Plyn | Zaveden |
| Připojení na internet | Jiné |
| Zastavěná plocha | 92 m² |
| Plocha parcely | 124 m² |
| Užitná plocha | 70 m² |
| Inženýrské sítě | Vodovod Kanalizace Plyn Elektřina |
| Druh stavby | rodinný dům, rekreační chalupa, rekreační pozemek |
| Poloha objektu | samostatný |




