| Číslo zakázky: | 27941 | ![]() Karta nemovitosti |
|---|---|---|
| Typ zakázky: | prodej |
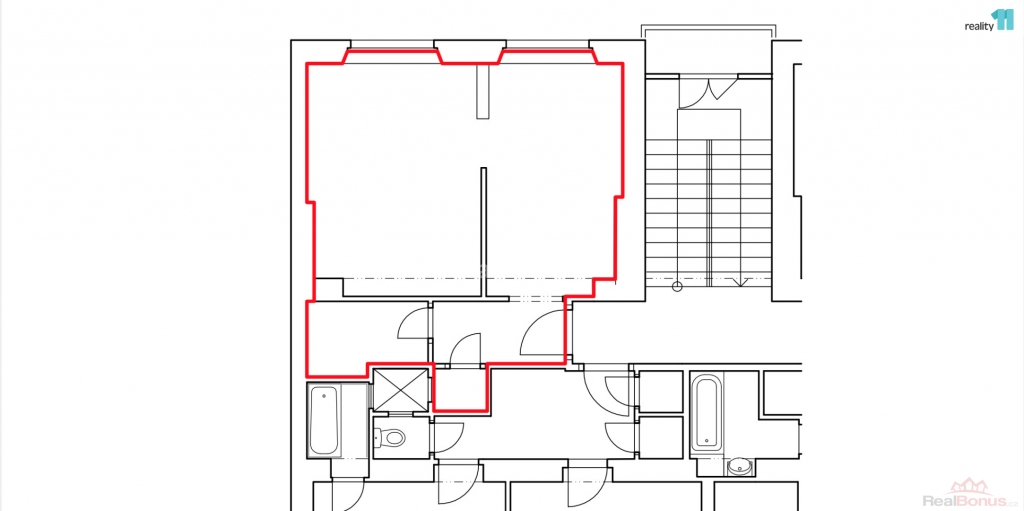
, Nabízíme zděný byt 2+kk o celkové ploše 38,42 m, ve 3. patře v klidné lokalitě širšího centra Prahy 5 - Smíchov. Byt je v současnosti užíván jako 1+kk a je vhodný k částečné rekonstrukci. S okny do klidného dvora na západ. V mezipatře domu jsou balkóny, např. pro věšení prádla. Ze zadního vchodu domu je vstup na menší zahradu, kterou lze využívat. Dům je v klidné ulici.
Rozměry místností: předsíň 3,53 m, obývací pokoj s KK 13,40 m, koupelna s WC 3,51 m, pokoj 16,97 m, komora 1,01 m. Vytápění je elektrickými přímotopy. Příprava teplé vody v elektrickém zásobníku. Koupelna je s vanou, umyvadlem a WC, vejde se tam i pračka.
Výborná dostupnost. Metro a tramvaj do 10 min pěšky na stanici Anděl. 150 m je zastávka autobusu. Rychlé spojení na dálnici D5 a Pražský okruh. Smíchov disponuje vlakovým i autobusovým nádražím i pro příměstské spoje.
V docházkové vzdálenosti je ZŠ i MŠ, supermarket Albert, restaurace, ostatní občanská vybavenost v nedalekém centru Smíchova, kde je i obchodní centrum Nový Smíchov. V blízkosti je zimní stadion Nikolajka. Parkování je možné v okolních komunikacích. V blízkosti lokality jsou přírodní oblasti Šalamounka, Měchurka, sportovní areál Santoška.
Ideální pro mladé páry nebo investory, kteří hledají bydlení s potenciálem v atraktivní lokalitě s výbornou dopravní dostupností. Byt je aktuálně pronajatý s možností pokračování nájmu. Ev. číslo: 27941. Energetický štítek: G
| Cena: | (za nemovitost) 6 100 000,- Kč |
|---|
| Dispozice bytu | 2+kk |
|---|---|
| Číslo podlaží v domě | 4 |
| Počet podlaží objektu | 6 |
| Celková podlahová plocha | 38 m² |
| Druh objektu | cihlová |
| Stav objektu | dobrý |
| Energetická třída | G - Mimořádně nehospodárná |
| Vlastnictví | osobní |
| Vybaveno | Nezařízeno |
| Užitná plocha | 38 m² |




