| Číslo zakázky: | 234109 | ![]() Karta nemovitosti |
|---|---|---|
| Typ zakázky: | prodej |
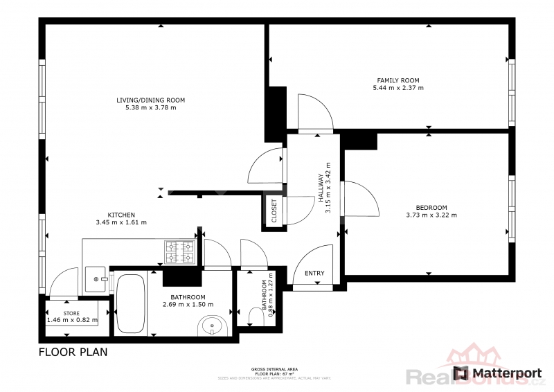
Rodinné bydlení byt 3+1 Vladislav-Nízké náklady na bydlení, ihned k nastěhování.
Nabízíme k prodeji slunný a prostorný byt 3+1 v prvním patře čtyřbytového domu ve Vladislavy. Ideální rodinné bydlení v žádané lokalitě cca 5km od Třebíče. Byt je v osobním vlastnictví a je za 2 950 000Kč, k bytu je dvojgaráž 36m2 za 990 000Kč, a udržovaná zahrada o výměře 292m2 za 400 000Kč.
V bytě byly vyměněny okna za plastová a byla nainstalovaná nová kuchyňská linka s elektrickým sporákem.
Vytápění je řešeno kotlem na tuhá paliva, ohřev vody je zabezpečen bojlerem. K bytu jsou dva sklepy + prostorná kotelna , kde je umístěn bojler.
Koupelna a el.rozvody jsou na rekonstrukci
S financováním vám rádi pomůžeme
| Cena: |
(za nemovitost) 2 950 000,- Kč
(včetně provize a právních služeb) (cena je bez garáže a zahrady)
|
|---|
| Dispozice bytu | 3+1 |
|---|---|
| Číslo podlaží v domě | 1 |
| Počet podlaží objektu | 2 |
| Celková podlahová plocha | 64 m² |
| Druh objektu | cihlová |
| Stav objektu | dobrý |
| Energetická třída | G - Mimořádně nehospodárná |
| Vlastnictví | osobní |
| Počet podlaží pod zemí | 1 |
| Vlastní pozemek | 90 m² |
| Plocha sklepu | 20 m² |
| Vybavení | sklep zahrada |
| Vybaveno | Částečně zařízeno |
| Popis vybavení | Nová kuchyňská linka, garáž vybavena starší kuch. linkou |
| Topení | Lokální - plynové Ústřední - tuhá paliva |
| Doprava | vlak silnice autobus |
| Elektřina | 230 V |
| Voda | dálkový vodovod |
| Odpad | Městská kanalizace |
| Plyn | Zaveden |
| Občanská vybavenost | Zdravotnická zařízení |
| Parkování | garáž |
| Plocha parcely | 90 m² |
| Užitná plocha | 64 m² |
| Plocha zahrady | 292 m² |
| Druh pozemku | zvláštní |
| Druh zápisu v katastru | katastr nemovitostí |
| Druh číslování parcely | Stavební parcela |
| K dispozici od | 25.06.2024 |
