| Číslo zakázky: | 3/26 | ![]() Karta nemovitosti |
|---|---|---|
| Typ zakázky: | pronájem |
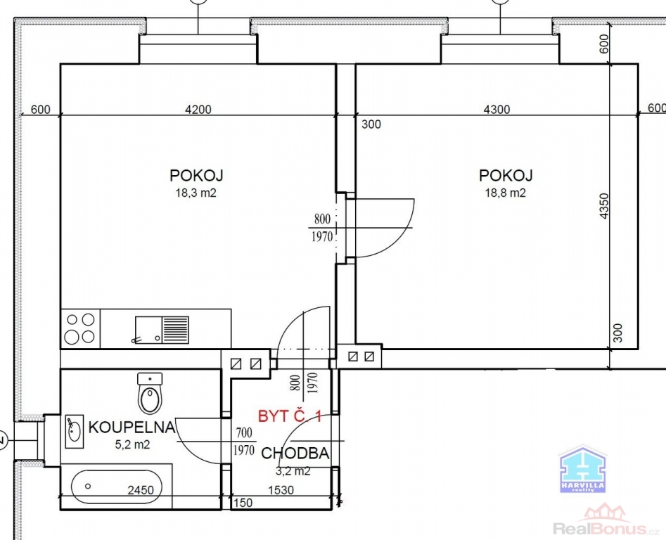
Nabízíme Vám k pronájmu byt o dispozici 2+KK a výměře 45,5 m2, který se nachází v přízemí nově zrekonstruovaného domu ve Stříbře, v Plzeňské ulici. Byt disponuje koupelnou s vanou, umyvadlem a WC. Kuchyňská linka má vestavnou sklokeramickou varnou desku, el. troubu, myčku a digestoř. Podlahy jsou pokryté linem, na chodě a na soc. zařízení je keramická dlažba. Okna jsou plastová a orientovaná na jihovýchod s krásným výhledem. Ohřev vody je pomocí el. boileru, vytápění zajišťují keramické elektrické přímotopy. Pouze pro bonitní a slušné nájemníky, nekuřáky, bez domácích mazlíčků. Čistý nájem 12.000,- Kč/měs. + voda dle spotřeby 1x za půl roku + elektřina bude přepsána na nájemce + vratná kauce 36.000,- Kč.
| Cena: |
(za měsíc) 12 000,- Kč
(bez poplatků, + provize RK, včetně právního servisu)
|
|---|
| Dispozice bytu | 2+kk |
|---|---|
| Číslo podlaží v domě | 1 |
| Počet podlaží objektu | 3 |
| Celková podlahová plocha | 45 m² |
| Druh objektu | cihlová |
| Stav objektu | po rekonstrukci |
| Energetická třída | G - Mimořádně nehospodárná |
| Vlastnictví | osobní |
| Umístění objektu | centrum |
| Doprava | vlak dálnice silnice MHD autobus |
| Voda | dálkový vodovod |
| Odpad | Městská kanalizace |
| Užitná plocha | 45 m² |
| Komunikace | asfaltová |
| Inženýrské sítě | Vodovod Kanalizace |
| Charakter okolní zástavby | obchodní a obytná |
| Poloha objektu | samostatný |
| K dispozici od | 14.10.2025 |
