| Číslo zakázky: | 19257 | ![]() Karta nemovitosti |
|---|---|---|
| Typ zakázky: | pronájem |
+popl. 4785, , Reality 11 Vám zprostředkují Reprezentativní kancelář 52,2 m se START UP slevou 25 % na celý první rok!
Hledáte reprezentativní prostor pro své podnikání, který podtrhne profesionalitu vaší firmy? Nabízíme k pronájmu krásnou kancelář o celkové ploše 52,2 m, kompletně vybavenou nábytkem na míru, připravenou k okamžitému užívání.
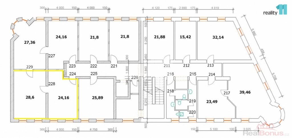
Dispozice kanceláře:
Přední kancelář 23,9 m
Ideální jako recepce či sekretariát. Součástí je plně vybavená kuchyňka včetně myčky nádobí.
Zadní kancelář 28,3 m
Vhodná jako ředitelna nebo hlavní pracovní kancelář s dostatkem soukromí.
Hlavní výhody:
Luxusní nábytek na míru v ceně pronájmu
2 patro budovy s výtahem,
dostatek ZDARMA parkovacích míst přímo u objektu
Kompletně oplocený areál s automatickou vjezdovou bránou
EZS a EPS zabezpečovací systém
Venkovní i vnitřní kamerový systém
Vysokorychlostní internet
Plynové vytápění
Kompletní servis v ceně (úklid kanceláře, společných prostor i toalet)
Toalety na každém patře
Menší zasedací místnosti v mezipatrech ZDARMA k dispozici nájemcům
START UP SLEVA 25 % na celý první rok nájmu!
Ideální příležitost pro začínající firmy i zavedené podnikatele, kteří chtějí reprezentativní sídlo za zvýhodněných podmínek.
Tato kancelář nabízí kombinaci prestiže, bezpečnosti, komfortu a kompletního servisu bez dalších starostí.
Doporučujeme osobní prohlídku rádi vám prostory představíme. Ev. číslo: 19257. Energetický štítek: G
| Cena: |
(za měsíc) 10 603,- Kč
(+popl. 4785)
|
|---|
| Druh objektu | cihlová |
|---|---|
| Stav objektu | velmi dobrý |
| Energetická třída | G - Mimořádně nehospodárná |
| Vybaveno | Nezařízeno |
| Počet míst k parkování | 2 |
| Užitná plocha | 52 m² |
| Druh prostor | Kanceláře |
