| Číslo zakázky: | 01299 | ![]() Karta nemovitosti |
|---|---|---|
| Typ zakázky: | prodej |
Exkluzivně nabízíme prodej pozemku s rozestavěným BD v Roztokách.
Dům je nyní ve výstavbě a jsou schváleny 2 až 4 bytové jednotky 2+kk a 3+kk s vlastními zahradami a parkovacím stáním.
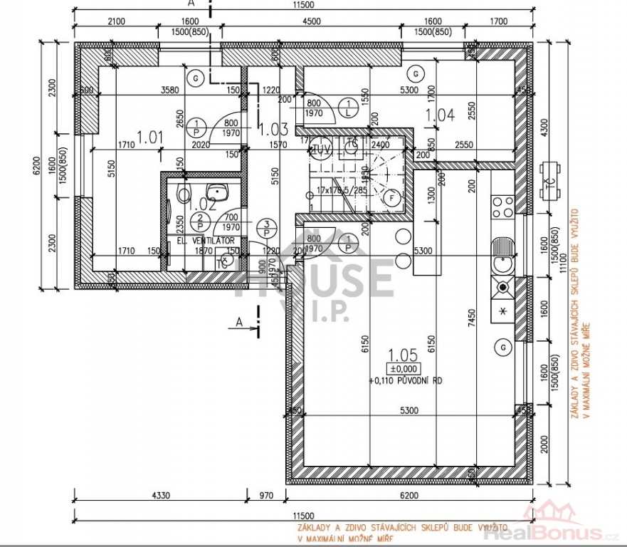
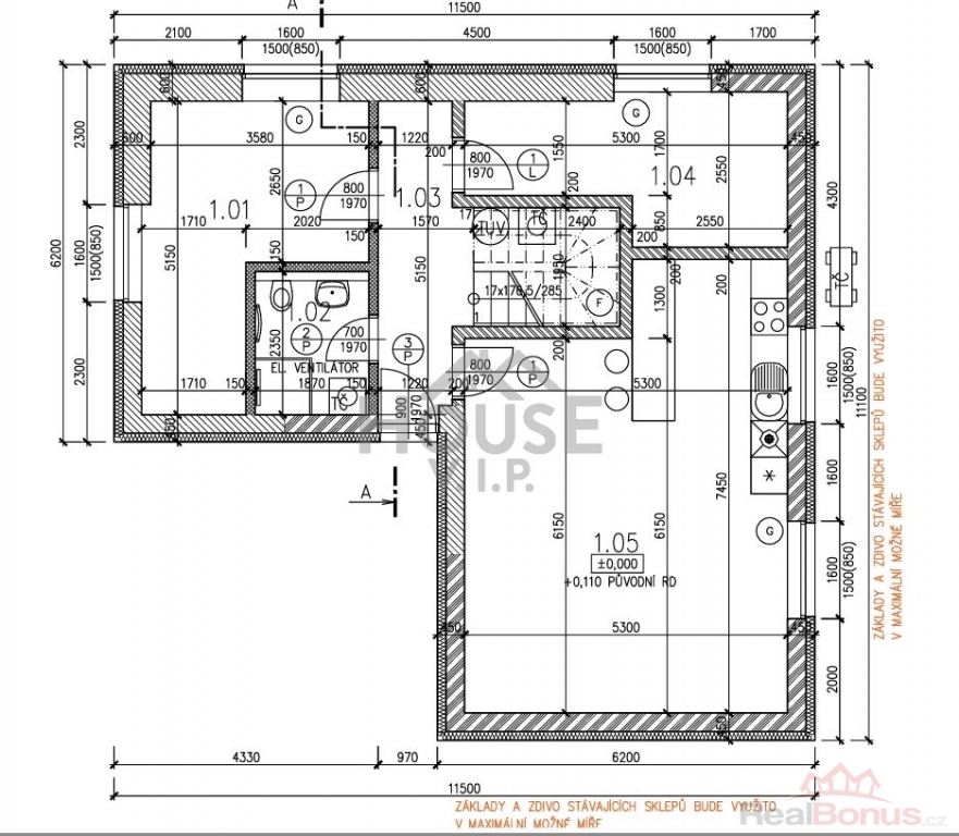
Kompletní projektová dokumentace k výstavbě přestavbě se stavebním povolením.
Byly zahájeny práce na 1NP, všechny sítě realizovány, příjezdová cesta a parkovací plochy vybudovány.
Průběžně budeme dodávat fotodokumentaci.
Zajímavá investiční příležitost ve vyhledávané a dostupné lokalitě na hranici Prahy 6.
Tato nabídka bude koncem dubna modifikována, nebo ukončena.
Klidná lokalita nabízí mnoho možností sportovního vyžití, blízkost řeky a okraj města jsou pro Vaše sportování ideální. Dostupné cyklostezky, prostor pro vodní i kolektivní sporty i kolektivní sporty pro Vaši dobrou kondici.
Nákupní možnosti jsou dobré, rovněž vzdělávací zařízení i veškeré občanská vybavenost jsou bez dojíždění dostupné přímo Roztokách u Prahy.
Historie obce Roztoky, která je tradiční odpočinkovou lokalitou Pražanů.
Roztoky, nacházející se na břehu Vltavy, má bohatou historii, která se zahrnuje do historie města Praha. První písemná zmínka o Roztokách se nachází v panovnické listině z roku 1233, ve které byl zmiňován i Petr z Roztok. Město bylo osídleno již od mladší doby kamenné a v letech 1945?1948 byla vybudována ?Penicilinka?, továrna na výrobu penicilinu. V roce 1960 se Roztoky spojily s obcí Žalov a v roce 1968 byly povýšeny na město. Od roku 2005 vzniká v Roztokách nová čtvrť Solníky.
www.roztoky.cz
| Cena: |
(za nemovitost) 12 899 000,- Kč
(včetně DPH, bez poplatků, včetně provize, včetně právního servisu)
|
|---|
| Počet podlaží objektu | 2 |
|---|---|
| Druh objektu | smíšená |
| Stav objektu | před rekonstrukcí |
| Vybavení | zahrada |
| Umístění objektu | centrum |
| Doprava | vlak silnice MHD |
| Voda | dálkový vodovod |
| Rok rekonstrukce | 2 026 |
| Stáří objektu | 106 |
| Zastavěná plocha | 239 m² |
| Plocha parcely | 594 m² |
| Ostatní | Parkoviště |
| Užitná plocha | 162 m² |
| Počet bytů - celkem | 2 |
| Počet bytů - volných | 2 |
| Plocha zahrady | 355 m² |
| Komunikace | asfaltová |
| Inženýrské sítě | Vodovod |
| Charakter okolní zástavby | obchodní a obytná |
| Poloha objektu | samostatný |




