| Číslo zakázky: | E1353BL037 | ![]() Karta nemovitosti |
|---|---|---|
| Typ zakázky: | prodej |
K prodeji Vám nabízíme rodinný dům o užitné ploše 74 m2 v obci Kučerov, ve vzdálenosti 10 km od Vyškova a dálničního nájezdu na Brno s dojezdem 35 min do centra města.
Dům s vlastním pozemkem o výměře 916 m2 je situován na samotném okraji obce v naprosto klidné části, ihned navazující na cyklostezku do Bohdalic.
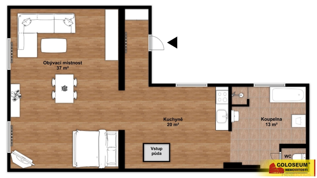
Dispozice domu aktuálně nabízí velkou obytnou místnost - 37 m2, prostornou kuchyni s jídelnou - 19,7 m2 a nadstandardně velkou koupelnu - 13 m2 s vyzděnou toaletou i sprchovým koutem, s vanou a umyvadlem, a dostatkem prostoru na pračku i sušičku. Vstupní chodba (3,8 m2) s úložným prostorem na obuv je hlavním vchodem do domu ze dvora, kde se nachází neobytný prostor (cca 15 m2) k uskladnění kol a venkovního nářadí. Součástí domu je také garáž o přibližné výměře 18 m2.
Mimo zastavěnou plochu je zůstávající část zahrady (691 m2) stále velmi prostornou k zahradničení i posezení s vlastním bazénem.
Díky možnému přístupu a příjezdu ze zadní strany zahrady přes obecní komunikaci se nabízí i varianta s rozdělením a odprodejem případně nevyužité části zahrady. Zadní přístup k nemovitosti je bezesporu velkou výhodou i v případě užívání celé nemovitosti.
Dům je vytápěn plynovým kotlem, a je připojen na elektřinu i vodovod. Pro odpad slouží septik.
Rekonstrukcí prošla koupelna, podlahy i okna. Dále je vhodné počítat s rekonstrukcí střechy, díky které lze využít nástavbu podkroví a rozšíření obytné plochy dle vlastních představ.
Pro více informací či domluvu na termínu prohlídky neváhejte kontaktovat realitní makléřku.
Průkaz energetické náročnosti budovy nebyl dodán, z tohoto důvodu uvádíme třídu G. Veškeré uvedené plochy jsou přibližné a mají orientační charakter.
Nemovitost lze financovat hypotečním úvěrem s jehož vyřízením rádi pomůžeme.
| Cena: |
(za nemovitost) 4 352 285,- Kč
(Celková cena je konečná, včetně právního servisu, provize, DPH a všech poplatků. Je však také možné o ni jednat - pro více informací nás kontaktujte.)
|
|---|
| Celková podlahová plocha | 107 m² |
|---|---|
| Druh objektu | cihlová |
| Stav objektu | dobrý |
| Energetická třída | G - Mimořádně nehospodárná |
| Vybavení | zahrada |
| Umístění objektu | centrum |
| Topení | Ústřední - plynové |
| Voda | dálkový vodovod |
| Odpad | Septik |
| Plyn | Zaveden |
| Parkování | garáž |
| Celková plocha | 107 m² |
| Zastavěná plocha | 225 m² |
| Plocha parcely | 916 m² |
| Ostatní | Garáž Parkoviště |
| Užitná plocha | 74 m² |
| Dílna | 33 m² |
| Plocha zahrady | 691 m² |
| Inženýrské sítě | Vodovod Plyn |
| Poloha objektu | řadový |




