| Číslo zakázky: | 27423 | ![]() Karta nemovitosti |
|---|---|---|
| Typ zakázky: | pronájem |
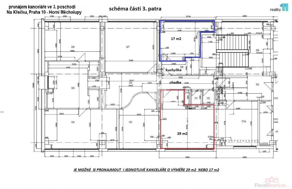
plus DPH, Reality 11 Vám zprostředkují pronájem prostorné kanceláře o ploše 29 m v administrativní budově v uzavřeném areálu s ostrahou v Praze 10, Horních Měcholupech. Areál je začleněn do původní zástavby převážně rodinných domků a současné nové moderní bytové zástavby. Kancelář k pronájmu se nachází ve 3. poschodí. Prostory jsou ve velmi dobrém stavu, s možností úpravy dle potřeb nájemce, okna plastová, na podlaze koberce, zavedena 1 klimatizační jednotka. K dispozici je kuchyňka v uzavřeném prostoru společná i pro ostatní nájemce v této části patra. Sociální zázemí je umístěno na poschodí. Měsíční nájemné činí 260 Kč/m plus DPH, měsíční poplatky za služby činí 160 Kč/m plus DPH; k celkové ploše kanceláře se připočítává 5m jako podíl na společných prostorách. V úhradě za služby je započítána spotřeba elektřiny vlastní i společných prostor, teplo a teplá voda, vodné, stočné, výtah, úklid společných i venkovních prostor, likvidace odpadu, recepce, ostraha. Internet o rychlosti 200/200 Mbit za 600,- Kč měsíčně. Úklid kanceláře 700,- Kč/měsíc. Doba provozu budovy není omezena, prostory jsou střeženy kamerovým systémem a EZS napojením na PCO - výjezd. Oblast je dobře dostupná MHD, s dostatečnou občanskou vybaveností a možností nákupů. Kauce ve výši měsíčního nájmu. Ve prvním poschodí budovy jsou k pronájmu kanceláře o rozloze 30 m a 80 m. Ev. číslo: 27423. Energetický štítek: G (192 kWh/m2/rok).
| Cena: |
(za měsíc) 8 840,- Kč
(plus DPH)
|
|---|
| Počet podlaží objektu | 5 |
|---|---|
| Druh objektu | skeletová |
| Stav objektu | velmi dobrý |
| Energetická třída | G - Mimořádně nehospodárná |
| Umístění objektu | centrum |
| Vybaveno | Nezařízeno |
| Užitná plocha | 29 m² |
| Druh prostor | Kanceláře |
