| Číslo zakázky: | 00220 | ![]() Karta nemovitosti |
|---|---|---|
| Typ zakázky: | prodej |
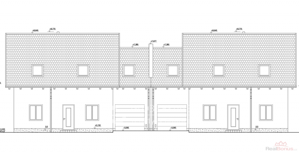
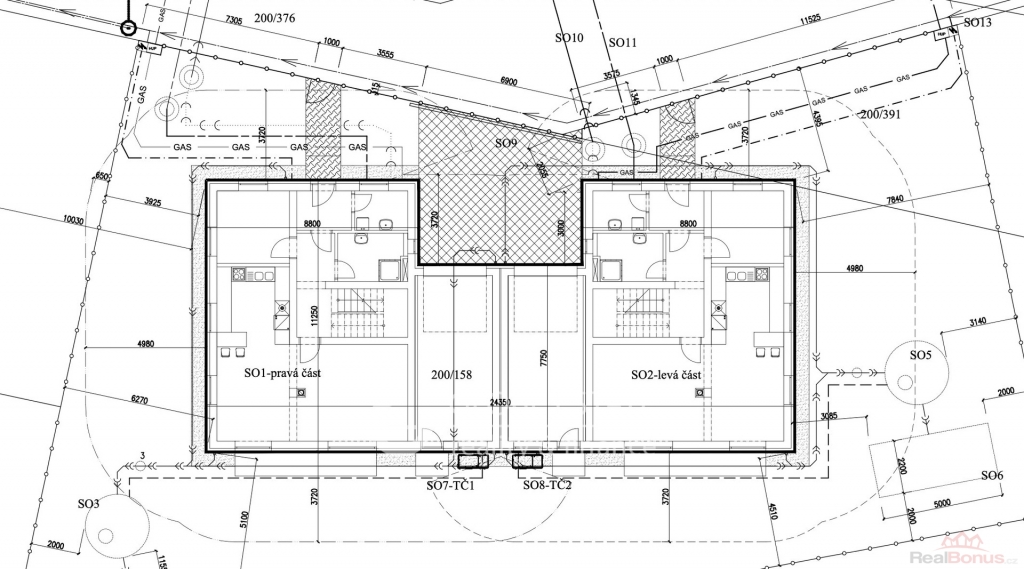
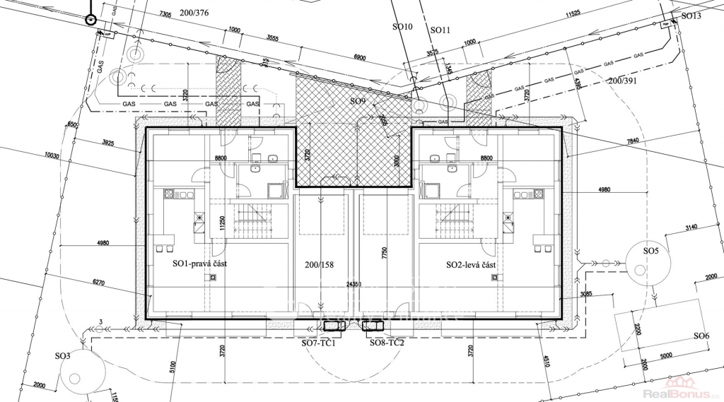
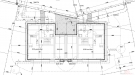
K prodeji nabízíme pravou půlku patrového dvojdomku 5+kk o rozloze cca 120 m2 s pozemkem přibližně 410 m2 v oblíbené lokalitě pro bydlení v obci Nehvizdy.
Tento moderní dům bude součástí nové zástavby rodinných domů, což zaručuje příjemné, klidné bydlení a zároveň dobrou dostupnost do Prahy, nebo okolních měst.
Zděný dům bude prodáván jako hrubá stavba, s novými kvalitními okny a vstupními dveřmi, to vám umožní přizpůsobit interiér podle vašich představ. Fasáda a interiér domu bude k dokončení po dohodě s realizující firmou, nebo si můžete vybrat stavební firmu podle vlastního uvážení.
Tímto způsobem získáte možnost vytvořit si domov přesně podle svých potřeb a vkusu.
Dům bude připojen na veškeré dostupné sítě ? elektřinu, plyn, vodu, kanalizaci a optiku.
Pozemek bude v zadní části oplocen, pro zajištění potřebného soukromí a bezpečnosti. Vjezdová brána není součástí dodávky a tím budete mít možnost zvolit si vlastní řešení. Dokončení hrubé stavby je plánováno na léto 2026, termín vám dává dostatek času na přípravu a plánování vašeho nového bydlení.
Tato nemovitost představuje skvělou investici do budoucnosti, ať už hledáte rodinný dům pro sebe, nebo zajímavou příležitost na trhu s nemovitostmi.
Neváhejte nás kontaktovat pro více informací.
| Cena: |
(za nemovitost) 10 459 990,- Kč
(včetně právního a hypotečního servisu)
|
|---|
| Celková podlahová plocha | 120 m² |
|---|---|
| Druh objektu | cihlová |
| Stav objektu | ve výstavbě (hrubá stavba) |
| Energetická třída | G - Mimořádně nehospodárná |
| Umístění objektu | centrum |
| Doprava | dálnice silnice MHD autobus |
| Voda | dálkový vodovod |
| Odpad | Městská kanalizace |
| Plyn | Zaveden |
| Počet míst k parkování | 2 |
| Celková plocha | 120 m² |
| Zastavěná plocha | 120 m² |
| Plocha parcely | 410 m² |
| Ostatní | Parkoviště |
| Užitná plocha | 120 m² |
| Komunikace | dlážděná |
| Inženýrské sítě | Vodovod Kanalizace Plyn |
| Charakter okolní zástavby | obytná |
| Poloha objektu | v bloku |




