| Číslo zakázky: | 32113 | ![]() Karta nemovitosti |
|---|---|---|
| Typ zakázky: | prodej |
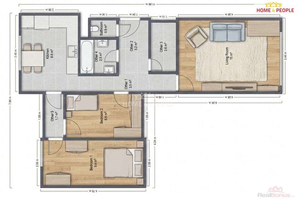
, Nabízíme k prodeji byt o dispozici 3+1 a celkové užitné ploše 61 m, který se nachází ve zvýšeném 1. nadzemním podlaží bytového domu v ulici Jilemnického.
K bytu náleží lodžie o velikosti 5 m, ideální pro odpočinek a posezení, a dále sklep o velikosti 4 m, který poskytuje dostatek úložného prostoru. Praktickým benefitem domu je také kolárna.
Byt má příjemnou orientaci na severovýchod a jihozápad, což zajišťuje dostatek denního světla během celého dne a zároveň možnost přirozeného větrání.
Dům je vybaven novým výtahem a společenství vlastníků jednotek dobře hospodaří. V plánu je také zateplení domu, což do budoucna přispěje ke zvýšení komfortu bydlení i hodnoty nemovitosti.
Byt se nachází ve zvýšeném 1. NP, které nabízí pohodlný přístup bez nutnosti využívat výtah a zároveň více soukromí než klasické přízemí.
Nemovitost je vhodná jak pro rodinné bydlení, tak jako investiční příležitost.
Byt se nachází v klidné a zároveň dobře dostupné lokalitě s kompletní občanskou vybaveností v docházkové vzdálenosti. V okolí najdete:
mateřské a základní školy
obchody a supermarkety
lékaře, lékárnu a další služby
dětská hřiště a sportoviště
zastávky MHD s dobrou dostupností do centra
V blízkosti je také dostatek zeleně pro procházky, běh či venkovní aktivity.
V případě zájmu o více informací nebo domluvení prohlídky mě neváhejte kontaktovat. Ev. číslo: 32113. Energetický štítek: G
| Cena: | (za nemovitost) 3 299 000,- Kč |
|---|
| Dispozice bytu | 3+1 |
|---|---|
| Číslo podlaží v domě | 1 |
| Počet podlaží objektu | 8 |
| Celková podlahová plocha | 61 m² |
| Druh objektu | panelová |
| Stav objektu | před rekonstrukcí |
| Energetická třída | G - Mimořádně nehospodárná |
| Vlastnictví | osobní |
| Vybaveno | Nezařízeno |
| Topení | Lokální - plynové |
| Užitná plocha | 61 m² |




