| Číslo zakázky: | XA-472 | ![]() Karta nemovitosti |
|---|---|---|
| Typ zakázky: | pronájem |
Dobrý den, pronájem bytu 4+kk v Pardubicích nereálné? Ano, nabídka větších bytů k pronájmu v Pardubicích je skutečně velmi nízká, občas dokonce nulová. Nicméně mám pro Vás dobrou zprávu.
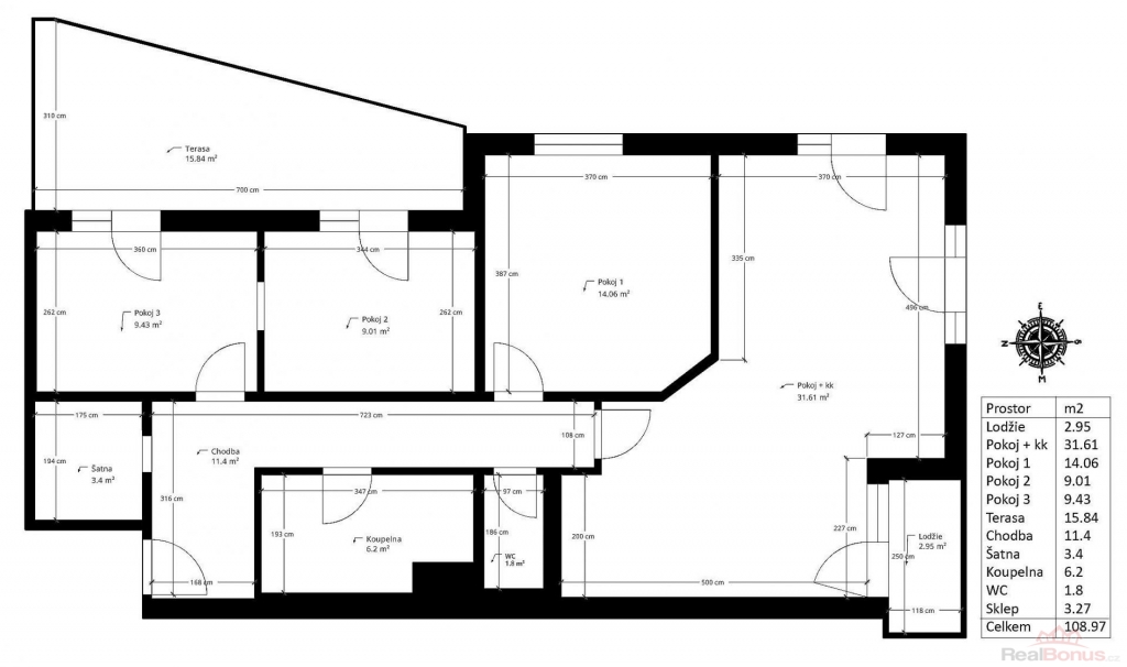
Připravili jsme pro Vás pronájem bytu 4+kk o výměře podle dokumentace 90,55 m2 + lodžie a terasa. Tento světlý a vzdušný komfortní byt se nachází ve 4.NP novostavby bytového domu z roku 2018 v projektu Nové Ohrazenice v Pardubicích. Dominantou bytu je velký obývací pokoj s kuchyňským koutem, který je klimatizován. Kuchyňský kout je zařízený potřebnými spotřebiči (lednička s mrazákem, pečící a mikrovlnná trouba, varná deska, odsavač par, myčka nádobí). Dispozice bytu obsahuje šatnu, prostornou koupelnu, do které se vejde pračka i sušička a samostatné WC. A pro milovníky venkovního posezení je zde terasa o výměře 15,84 m2. V rámci komfortu nechybí garážové stání a příslušející úložný prostor.
Pokud jste rodina, která hledá větší životní prostor v kombinaci komfortního bydlení, dobré dopravní obslužnosti a občanské vybavenosti. Mohla by být tato nabídka pro Vás zajímavá.
Výše nájmu činí 25.000 Kč + 4.500 Kč zálohy na energie a služby spojené s užíváním bytu. Peněžitá jistota (vratná kauce) činí 60.000 Kč. Provize RK je ve výši 20.000 Kč.
Volný ihned.
Děkuji za pozornost a budu se těšit na osobní setkání spojené s prohlídkou. Václav Růžička, realitní specialista.
Pronajímatel si vyhrazuje právo vybrat nájemce podle jím zvolených kritérií.
| Cena: |
(za měsíc) 25 000,- Kč
(+ 4.500 Kč záloha na energie a služby)
|
|---|
| Dispozice bytu | 4+kk |
|---|---|
| Číslo podlaží v domě | 4 |
| Počet podlaží objektu | 5 |
| Druh objektu | cihlová |
| Stav objektu | novostavba |
| Vlastnictví | osobní |
| Druh bytu | v nájemním domě (činžovním) |
| Počet podlaží pod zemí | 1 |
| Vybavení | výtah lodžie terasa sklep |
| Umístění objektu | klidná část obce |
| Vybaveno | Částečně zařízeno |
| Topení | Ústřední - dálkové |
| Druh stavby | budova/y, hala/y |
| Poloha objektu | samostatný |




