| Číslo zakázky: | 372544 | ![]() Karta nemovitosti |
|---|---|---|
| Typ zakázky: | pronájem |
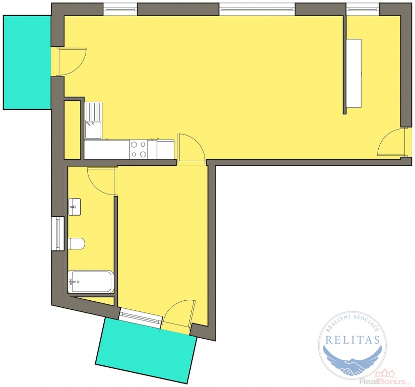
Náročnějšímu nájemci zprostředkuji byt 2+kk, 74, 8, m + dva balkony v 3. podlaží v projektu Vitality Rezidence nadstandardně řešené novostavbě z roku 2020, umístěné na Praze 5 Smíchov, v Kobrově ulici, mezi parkem Sacré Coeur a klášterem svatého Gabriela. Byt se sestává z předsíně s šatní skříní, obývacího pokoje s kuchyňským koutem (42 m), ložnice s dvoulůžkem (14 m) a koupelny s vanou, toaletou a pračkou (vizte, prosím, půdorys). Z obývacího pokoje ústí jeden balkon s krásným výhledem na klášter (severozápad), druhý balkon z ložnice (jihozápad), obývací pokoj je orientován na severovýchod. V celém bytě je parketová podlaha. Rezidenti domu mohou zdarma využívat fitness, společenskou místnost s kuchyní či přednáškový sál. Budova má výborný průkaz energetické náročnosti "B - velmi úsporná".
Záloha za služby činí 9 500 Kč/měsíc. Služby mimo jiné zahrnují, služby recepce, ostrahy, domovníka, úklid bytu jednou týdne podle potřeby.
Při uzavření nájemní smlouvy je třeba uhradit odměnu realitní kanceláře a vratnou kauci. Nájemní smlouva je uzavírána na jeden rok, v případě oboustranné spokojenosti je možné ji každý rok prodlužovat. Byt je ihned k dispozici. Pronajímatel si vyhrazuje právo vybrat nájemce dle jím zvolených kritérií. Do not hesitate to contact me if you are English speaker. Vřele doporučuji prohlídku.
| Cena: |
(za měsíc) 37 000,- Kč
(měsíční záloha za služby 9 500 Kč, vratná kauce 74 000 Kč, odměna zprostředkovatele 37 000 Kč) (bez poplatků) (+ provize RK) (včetně právního servisu)
|
|---|
| Dispozice bytu | 2+kk |
|---|---|
| Číslo podlaží v domě | 3 |
| Počet podlaží objektu | 5 |
| Celková podlahová plocha | 96 m² |
| Druh objektu | cihlová |
| Stav objektu | novostavba |
| Energetická třída | B - Velmi úsporná |
| Vlastnictví | osobní |
| Počet podlaží pod zemí | 1 |
| Plocha balkonu | 9 m² |
| Bezbariérový byt | ano |
| Vybavení | balkon |
| Umístění objektu | centrum |
| Rok kolaudace | 2 020 |
| Počet míst k parkování | 1 |
| Užitná plocha | 75 m² |
| Charakter okolní zástavby | obytná |




