| Číslo zakázky: | 28074 | ![]() Karta nemovitosti |
|---|---|---|
| Typ zakázky: | prodej |
+popl. 3436, Cena včetně provize a právního servisu., Exkluzivně Vám nabízím koupi dobře řešeného a světlého bytu 2+kk s JV orientací o celkové podlahové ploše 44 m v Jablonci nad Nisou. Byt je v družstevním vlastnictví bez možnosti převodu do OV.
Bytová jednotka se nachází v ulici Pasecká v 5.NP z 8. Jedná se o klidnou oblast s dobrou občanskou vybaveností, nachází se zde MŠ, ZŠ, zastávka MHD, obchody, sportoviště. V blízkosti jsou mnohé možnosti sportovních a volnočasových aktivit, nedaleko se nachází vodní nádrž Mšeno. Z oken je krásný, ničím nezastíněný výhled do krajiny.
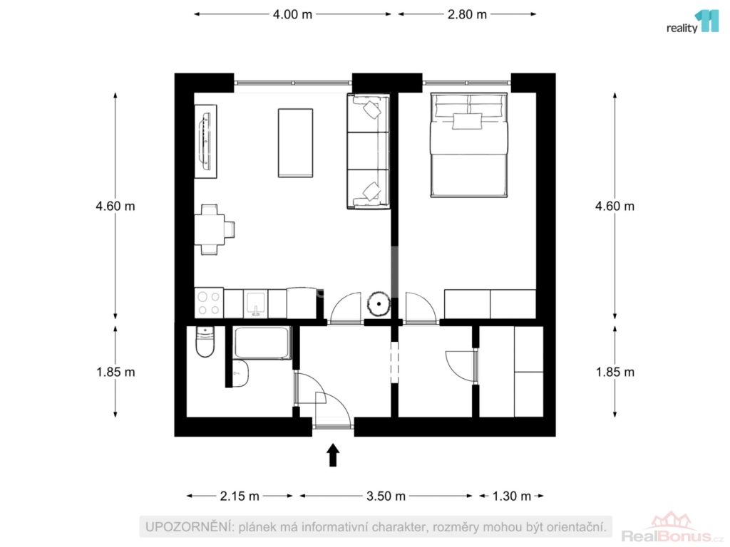
Byt je velmi dobře řešen, nachází se zde zádveří s chodbou, dost velkou pro umístění skříní, praktická je uzavřená komora, následuje koupelna, ve které je sprchový kout s vaničkou a WC. Úzká pračka stojí vně koupelny v předsíni.
V obývacím pokoji o velikosti 18 m je umístěn kuchyňský kout s místem pro velkou chladničku.
Ložnice má samostatný vchod a má 12 m.
K bytu náleží nejen tradiční dřevěná sklepní kóje, ale i místnost/sušárna prádla s balkonem přímo na patře. Je společná pro 3 byty.
V bytě proběhla částečná rekonstrukce:
- umakart v koupelně nahrazen zděnou konstrukcí s WC za přepážkou, nové vodoměry, stoupačky
- nová vkusná kuchyňská linka s ještě nepoužitým kombinovaným sporákem MORA a digestoří. Koupelna i kuchyň mají nové rozvody elektřiny
- nové měřiče spotřeby na radiátorech
- nový zátěžový koberec položený na původním linoleu.
- nový štuk v předsíni
Dům prošel revitalizací (výměna oken, částečné zateplení fasády syst. Lifebrick, výtah, společné prostory)
Vytápění zajišťuje vlastní plynová kotelna s výměníky tepla a letos se počítá s tepelným čerpadlem.
Velkým bonusem je bezbariérový přístup do domu - u vchodu je el. plošina pro kočárky, případně pro vozíčkáře.
Také je letos v plánu rekonstrukce ulice, chodníky, parkovací stání ap.
Nízké celkové náklady jsou jasnou výhodou tohoto bytu.
Fond oprav 1.327,-Kč, zálohy na služby 2.109,-Kč, celkem 3.436,-Kč + elektřina.
Zařízení bytu v půdorysu a modelu je orientační.
Nemovitost doporučuji pro výbornou polohu, občanskou vybavenost, klid a krásný výhled.
Doposud nebyl dodán PENB, proto je nemovitost zařazena do kategorie G.
V případě zájmu o prohlídku mě kdykoliv kontaktujte, ráda Vás bytem provedu. Budu se na Vás těšit. Ev. číslo: 28074. Energetický štítek: G
| Cena: |
(za nemovitost) 3 150 000,- Kč
(+popl. 3436, Cena včetně provize a právního servisu.) (včetně provize)
|
|---|
| Dispozice bytu | 2+kk |
|---|---|
| Číslo podlaží v domě | 5 |
| Počet podlaží objektu | 8 |
| Celková podlahová plocha | 44 m² |
| Druh objektu | panelová |
| Stav objektu | velmi dobrý |
| Energetická třída | G - Mimořádně nehospodárná |
| Vlastnictví | družstevní |
| Vybaveno | Nezařízeno |
| Užitná plocha | 44 m² |




