| Číslo zakázky: | 0787 | ![]() Karta nemovitosti |
|---|---|---|
| Typ zakázky: | pronájem |
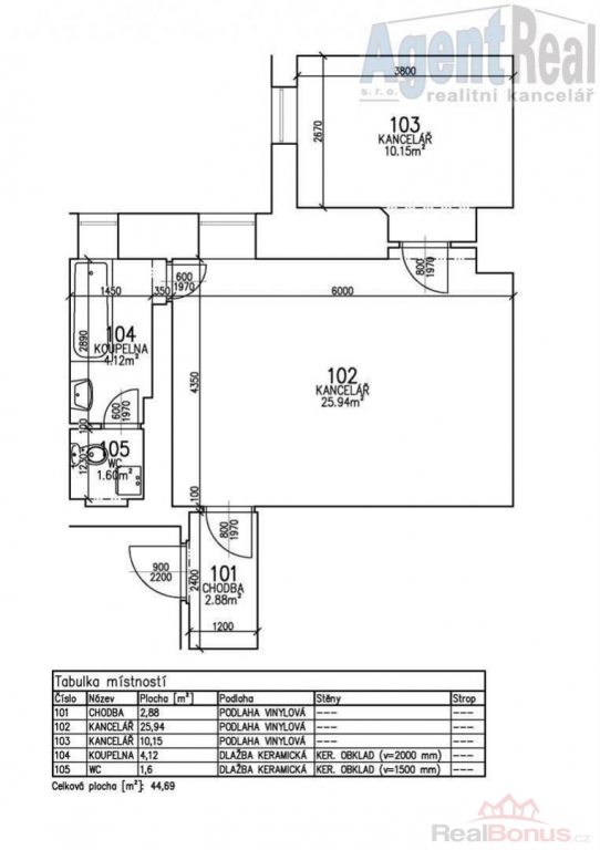
Nabízíme k dlouhodobému pronájmu nebytové prostory v Šumperku na Hlavní třídě. Prostory se nachází v přízemí, jsou po kompletní rekonstrukci, mají bezbariérový vstup, vlastní plynové topení, kuchyňskou linku (lze upravit na skříně s úložnými prostory), vlastní koupelnu a WC. Dispozice: Zádveří 2.88 m2, kancelář 25.94 m2, kancelář 10.15 m2, koupelna 4.12 m2, WC 1.6 m2. Celková plocha činí 44.69 m2. Prostory lze užívat jako kanceláře, ateliér, ordinace či přechodné bydlení.
Cena pronájmu je 10.700 Kč/měsíc + spotřeba energií (plyn na vytápění a ohřev TUV cca 2000 Kč, elektřina, voda), kauce ve výši 2 měsíčních nájmů.
Před osobní prohlídkou se prosím podívejte na 3D virtuální prohlídku na naší domovské stránce agent.cz, kde si byt prohlédnete mnohem lépe než z běžných fotografií či videa.
| Cena: | (za měsíc) 10 700,- Kč |
|---|
| Číslo podlaží v domě | 1 |
|---|---|
| Počet podlaží objektu | 3 |
| Druh objektu | smíšená |
| Stav objektu | po rekonstrukci |
| Energetická třída | D - Méně úsporná |
| Vlastnictví | osobní |
| Počet podlaží pod zemí | 1 |
| Umístění objektu | centrum |
| Vybaveno | Částečně zařízeno |
| Topení | Ústřední - plynové |
| Celková plocha | 45 m² |
| Účel budovy | Administrativní b. |
| Druh stavby | budova/y, hala/y |
| Poloha objektu | řadový |
| Druh prostor | Kanceláře |
