| Číslo zakázky: | 649993 | ![]() Karta nemovitosti |
|---|---|---|
| Typ zakázky: | prodej |
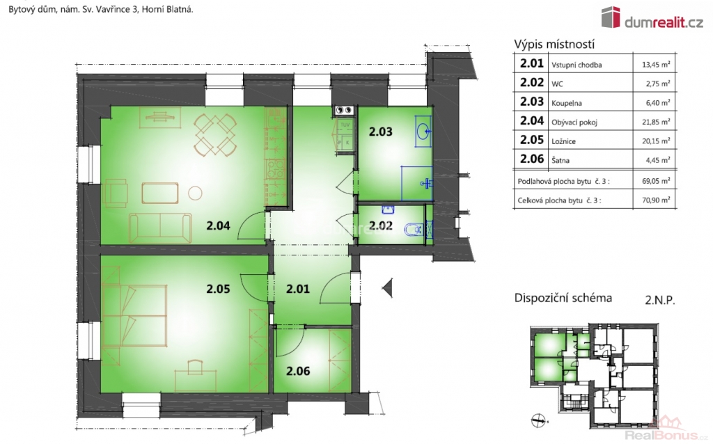
, Dumrealit.cz Vám zprostředkuje prodej apartmánů na náměstí Sv. Vavřince v Horní Blatné, které se nachází v blízkosti několika lyžařských areálů jako je Plešivec, Potůčky nebo Klínovec. Apartmán číslo 3. se nachází v prvním patře, je o velikosti 69 m s orientací na jižní stranu a s výhledem do přírody. Dispozice bytu 2+KK. Všechny apartmány jsou vybaveny sanitární keramikou v koupelnách, sprchovým koutem Walk-in, podlahovou krytinou a to v kombinaci velkoformátové dlažby a plovoucí podlahy v dekoru dřeva, obložkami, interiérovými a vstupními dveřmi a kompletní přípravou na osazení kuchyňské linky. Ke každému apartmánu patří jedno soukromé parkovací místo hned u domu a jedna sklepní kóje, vše je již započítáno v uvedené ceně. Součástí jsou také nádherné společné prostory a to včetně sklepního prostoru s možností posezení. Vytápění apartmánů je elektrické s dálkovým ovládáním s připojením na Wi-Fi. V apartmánovém domě se nachází 12 jednotek od 1+KK až po 3+KK různých podlahových výměr. Několik apartmánů je již prodáno. Izolant obvodových stěn 16-18cm polystyrenové dílce a 28cm minerální vlna v podkrovní části domu. Nemovitost se nachází přímo na náměstí s výhledem na hory a kostel Sv. Vavřince. Koupě apartmánu je ideální také jako investice, kdy jsou Krušné hory celoročně navštěvovány turisty a Horní Blatná patří svým umístěním mezi nejvíce vyhledávané. V blízkosti apartmánu se nachází Blatenský vrch, Vlčí jámy a mnoho turistických a cyklo tras. Nemovitost s možností odpočtu DPH z uvedené kupní ceny. Doporučuji nezávaznou prohlídku objektu s možností vybrat si právě ten VÁŠ apartmán. Uvedené fotografie s jíž osazenou kuchyňskou linkou a vybavením jsou z referenčního bytu č. 10. Ev. číslo: 649379. Energetický štítek: F
| Cena: | (za nemovitost) 6 021 000,- Kč |
|---|
| Dispozice bytu | 2+kk |
|---|---|
| Číslo podlaží v domě | 2 |
| Počet podlaží objektu | 4 |
| Celková podlahová plocha | 69 m² |
| Druh objektu | cihlová |
| Stav objektu | velmi dobrý |
| Energetická třída | F - Velmi nehospodárná |
| Vlastnictví | osobní |
| Vybaveno | Nezařízeno |
| Počet míst k parkování | 1 |
| Užitná plocha | 69 m² |




