| Číslo zakázky: | 25271 | ![]() Karta nemovitosti |
|---|---|---|
| Typ zakázky: | prodej |
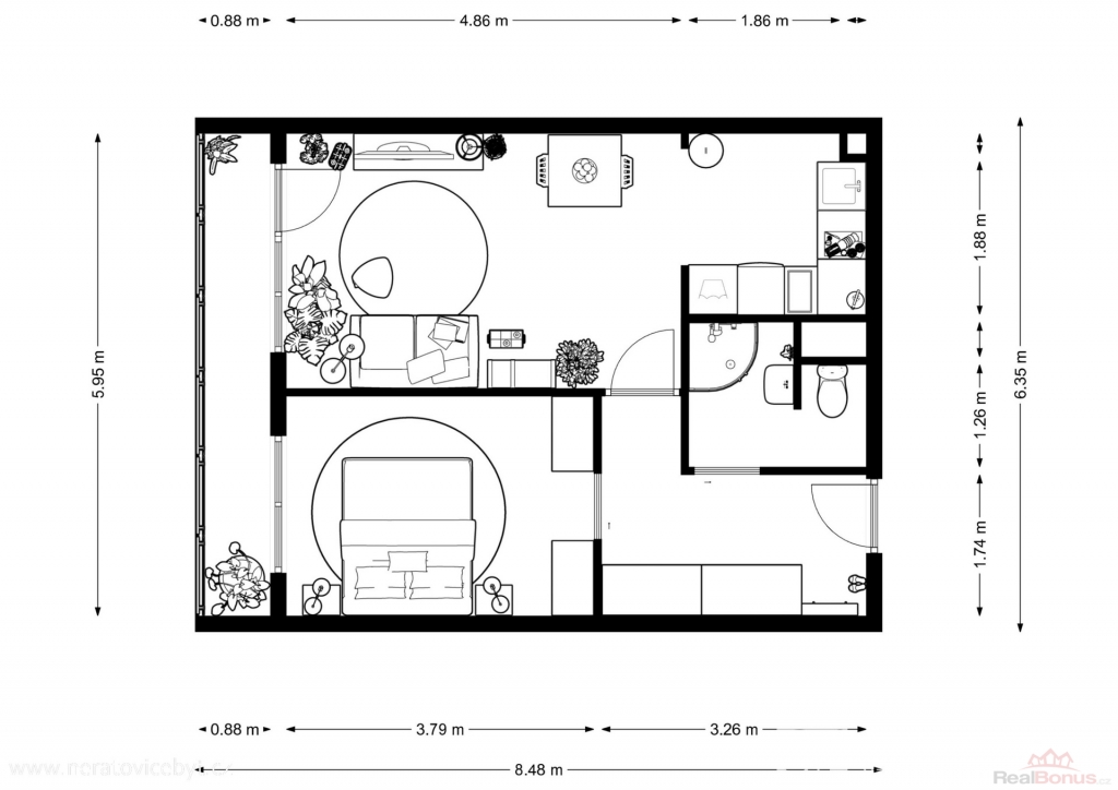
Dobrý den, nabízím družstevní byt o dispozici 2+kk a podlahové ploše 46,48 m2 s lodžií, komorou na chodbě a sklepem, který se nachází ve 3. patře domu s výtahem. Byt je v původním stavu, obyvatelný a připravený k okamžitému nastěhování, zároveň však představuje ideální příležitost pro kompletní rekonstrukci dle vlastních představ ? ať už pro vlastní bydlení nebo jako investici k pronájmu.
Po vstupu se nachází chodba s vestavěnou šatní skříní, která nabízí dostatek úložného prostoru. Z chodby je vstup do koupelny se sprchovým koutem a toaletou. Dále je zde samostatný pokoj s chytrým řešením vestavěné skříně, která zároveň slouží jako dveře do místnosti a šetří tak prostor. Hlavní obytnou část tvoří obývací pokoj se vstupem na lodžii, která příjemně rozšiřuje obytný prostor. Na obývací pokoj navazuje kuchyně. K bytu náleží také komora umístěná na chodbě domu a sklepní kóje.
Byt má umakartové jádro. Elektřina je v kuchyni a koupelně vedena v mědi, v pokojích je původní hliníkové vedení. Okna jsou plastová. Podlahy tvoří plovoucí podlaha a parkety.
Velkou výhodou je lokalita. Přímo u domu se nachází základní škola a dopravní hřiště, přes ulici je pekárna a v docházkové vzdálenosti supermarkety Billa a Penny. Autobusová zastávka s přímým spojením směr Praha Ládví ? Mělník je v bezprostřední blízkosti domu, což zajišťuje velmi dobrou dopravní dostupnost.
Byt je v družstevním vlastnictví. Pro více informací nebo domluvení prohlídky mě neváhejte kontaktovat.
| Cena: |
(za nemovitost) 3 990 000,- Kč
(cena je uvedena včetně poplatků a odměny RK)
|
|---|
| Dispozice bytu | 2+kk |
|---|---|
| Číslo podlaží v domě | 4 |
| Celková podlahová plocha | 46 m² |
| Druh objektu | panelová |
| Stav objektu | dobrý |
| Energetická třída | G - Mimořádně nehospodárná |
| Vlastnictví | osobní |
| Vybavení | lodžie |
| Užitná plocha | 46 m² |




