| Číslo zakázky: | JR0626 | ![]() Karta nemovitosti |
|---|---|---|
| Typ zakázky: | prodej |
Exkluzivně nabízíme k prodeji moderní byt 4+kk s balkonem v jedinečném developerském projektu v klidné rezidenční lokalitě města Tachova, ulice Palackého. Jedná se o výjimečnou příležitost stát se majitelem nového nízkoenergetického bytu v právě vznikajícím moderním bytovém domě, který splňuje nároky současného komfortního a kvalitního bydlení.
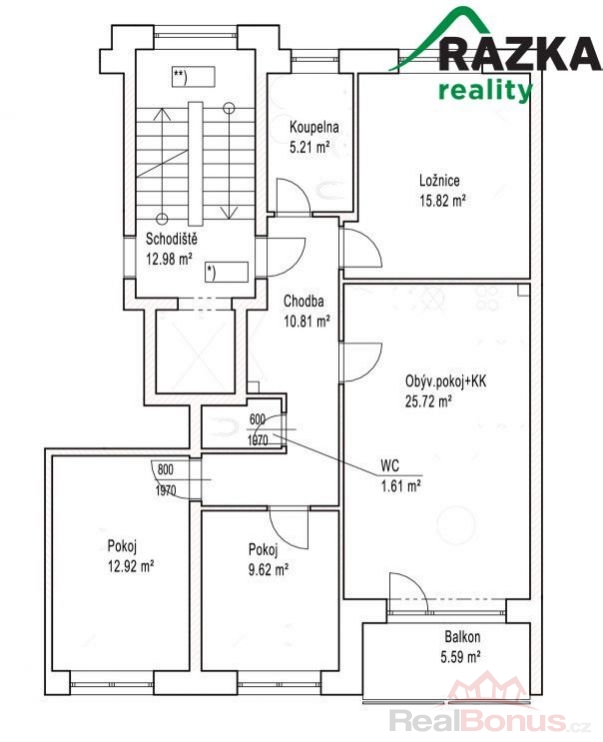
Bytová jednotka o dispozici 4+kk a podlahové ploše 80,23 m2 je situována ve 3. nadzemním podlaží bytového domu s výtahem. Součástí bytu je balkon o velikosti 5,59 m2, který poskytuje příjemný prostor pro relaxaci a každodenní odpočinek. K bytové jednotce náleží také sklepní kóje, která rozšiřuje možnosti úložného prostoru.
Dispozice bytu zahrnuje vstupní chodbu, prostorný obývací pokoj s kuchyňským koutem, ložnici a další dva samostatné pokoje, které lze využít jako dětské pokoje, pracovnu nebo pokoj pro hosty. K dispozici je koupelna s vanou a přípravou pro pračku a také samostatné WC s umývátkem. Standardem provedení je vinylová podlaha a komfortní teplovodní podlahové vytápění. Budoucí majitelé mají možnost ovlivnit finální vzhled interiéru výběrem povrchů jako jsou obklady, dlažby nebo podlahové krytiny, a přizpůsobit si tak bydlení vlastním představám.
Rezidenční dům nabídne veškeré zázemí pro moderní bydlení. K dispozici bude osobní výtah, kočárkárna či kolárna, sušárna, technické prostory i prakticky řešené společné části domu. V areálu jsou plánována garážová stání a dvojgaráže pro pohodlné parkování rezidentů. Energetickou úspornost objektu zajišťuje kvalitní zateplení budovy a instalace fotovoltaických panelů, které budou sloužit jako předohřev teplé vody.
Podrobnější informace o standardech provedení, plánovaném termínu dokončení, lokalitě či technických parametrech projektu Vám rádi poskytneme při osobní prohlídce s realitní makléřkou. S financováním koupě bytu prostřednictvím hypotečního úvěru Vám také rádi pomůžeme.
| Cena: | (za nemovitost) 4 495 000,- Kč |
|---|
| Dispozice bytu | 4+kk |
|---|---|
| Číslo podlaží v domě | 3 |
| Počet podlaží objektu | 5 |
| Druh objektu | cihlová |
| Stav objektu | novostavba |
| Energetická třída | B - Velmi úsporná |
| Vlastnictví | osobní |
| Druh bytu | v nájemním domě (činžovním) |
| Vybavení | balkon sklep |
| Umístění objektu | okrajová zástavba |
| Vybaveno | Částečně zařízeno |
| Druh stavby | budova/y, hala/y |
| Poloha objektu | v bloku |
