| Číslo zakázky: | 140464 | ![]() Karta nemovitosti |
|---|---|---|
| Typ zakázky: | pronájem |
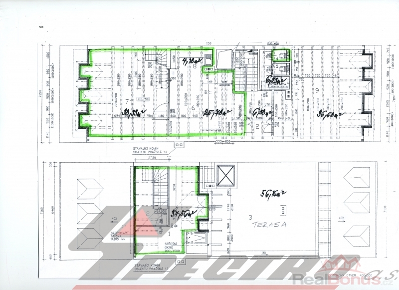
Nabízíme k pronájmu velmi reprezentativní luxusní nebytové prostory přímo v centru Plzně, Pražská ul. Nachází se v renesančním domě u nám. Republiky v podkroví ve 3.patře. Jedná se o 2 kanceláře s mezonetem o celkové výměře 102 m2 + terasa, vlastní kuchyňka a WC. Z předsíňky se vchází do místnosti o rozloze 25,78 m2 (recepce, sekretariát), z té je vstup do kuchyňky (4,18 m2) a prosklenými dveřmi se vejde do rozlehlé místnosti o vel. 38,33 m2, ze které vede dřevěné schodiště do mezonetového prostoru o vel. 37,56 m2, z něhož přístup na terasu o vel. 56 m2. Samostatná toaleta se nachází na vstupní chodbě. Vše vyznačeno na přiloženém nákresu - zeleně označené plochy. Nábytek lze v případě zájmu odstranit. Prostory mají vlastní zabezpečovací zařízení. Nájemné: 14.700 Kč. Energie a služby: 4.000 Kč (EE, topení, voda, úklid společných prostor a odvoz odpadků). Kauce 20.000 Kč. Provize 1 nájemné. Volné ihned.
| Cena: |
(za měsíc) 14 700,- Kč
(Energie a služby: 4.000 Kč (EE, topení, voda, úklid společných prostor a odvoz odpadků). Kauce 20.000 Kč. Provize 1 nájemné.)
|
|---|
| Číslo podlaží v domě | 3 |
|---|---|
| Počet podlaží objektu | 3 |
| Druh objektu | cihlová |
| Stav objektu | velmi dobrý |
| Počet podlaží pod zemí | 1 |
| Vybavení | terasa podkroví |
| Umístění objektu | centrum |
| Telekomunikace | Internet |
| Popis vybavení | Vybavení lze ponechat či odstranit, vše dle dohody. |
| Topení | Ústřední - plynové |
| Doprava | vlak dálnice silnice MHD autobus |
| Voda | dálkový vodovod |
| Odpad | Městská kanalizace |
| Sociální zařízení | ano |
| Sociální zařízení - popis | vlastní |
| Ostatní | Sociální zařízení |
| Užitná plocha | 165 m² |
| Plocha kanceláří | 102 m² |
| Komunikace | dlážděná |
| Počet kanceláří | 3 |
| Druh prostor | Kanceláře |
| Vybavení kanceláří | ano |
| K dispozici od | 01.04.2024 |




