| Číslo zakázky: | 655261 | ![]() Karta nemovitosti |
|---|---|---|
| Typ zakázky: | pronájem |
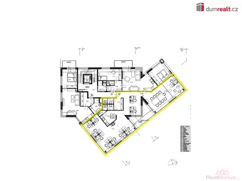
+ služby a elektroměr, Dumrealit.cz Vám zprostředkuje exkluzivně pronájem zcela nového komerčního prostoru o velikosti 132,07 m, v nově stavěné budově (PENB B) přímo u budoucí stanice metra D - Nové Dvory (přes ulici Štúrova), která bude dokončena v druhé polovině roku 2026 - info v RK. Tento prostor se nachází ve druhém patře třípatrové nízkoenergetické budovy s fotovoltaikou, rekuperací a s výtahem a bezbariérovým přístupem. Prostor 132,07 m může bude kolaudován jako kancelář - dle dohody nájemce může rekolaudovat na jiný obchodní prostor - výběr je plně na klientovi. K dispozici bude plně vybavená kuchyňka s denní místností, 2 x toaleta a 2 x úklidová místnost - viz plánky v prezentaci. K prostoru lze dopronajmout kryté parkovací stání a popř. sklepě. V domě bude 12 parkovací stání v suterénu domu, 6 x sklep a dále lze pronajmout až 3 venkovní parkovací stání. Aktuálně se v domě instalují okna, sdk příčky a klimatizace + rekuperace, v prostorech bude podlahové topení. Tato budova bude dokončena a zkolaudována v druhé polovině roku 2026, již nyní mohou probíhat prohlídky a úpravy prostor před dokončením přímo na přání nového nájemce. Velmi doporučuji všem zájemcům, kteří již nyní hledají atraktivní prostor u budoucí stanice metra D Nové Dvory, v ulici Štúrova, Praha 4. Ev. číslo: 654647. Energetický štítek: B (60 kWh/m2/rok).
| Cena: |
(za m2 / měsíc) 360,- Kč
(+ služby a elektroměr)
|
|---|
| Počet podlaží objektu | 4 |
|---|---|
| Druh objektu | skeletová |
| Stav objektu | novostavba |
| Energetická třída | B - Velmi úsporná |
| Vybaveno | Nezařízeno |
| Topení | Lokální - plynové |
| Zastavěná plocha | 132 m² |
| Užitná plocha | 132 m² |
| Druh prostor | Obchodní |
