| Číslo zakázky: | N/RSB/21588/26 | ![]() Karta nemovitosti |
|---|---|---|
| Typ zakázky: | prodej |
Nabízíme k prodeji zajímavou nemovitost v obci Pozořice ? dva rodinné domy se samostatnými čísly popisnými, které jsou stavebně propojeny a v současnosti tvoří jeden funkční celek. Nemovitost nabízí velmi variabilní využití ? ideální například pro vícegenerační bydlení nebo kombinaci vlastního bydlení s pronájmem části domu.
Dům je situován ve svahu nad úrovní komunikace, což zajišťuje větší soukromí a zároveň příjemné výhledy do okolí.
Nemovitost je v dobrém stavebně-technickém stavu a od konce 90. let prošla postupnou modernizací. Bylo provedeno zateplení domu, nové izolace a kompletní výměna elektroinstalace do mědi. Konstrukčně se jedná o smíšené zdivo. Vytápění je zajištěno vlastním plynovým kotlem.
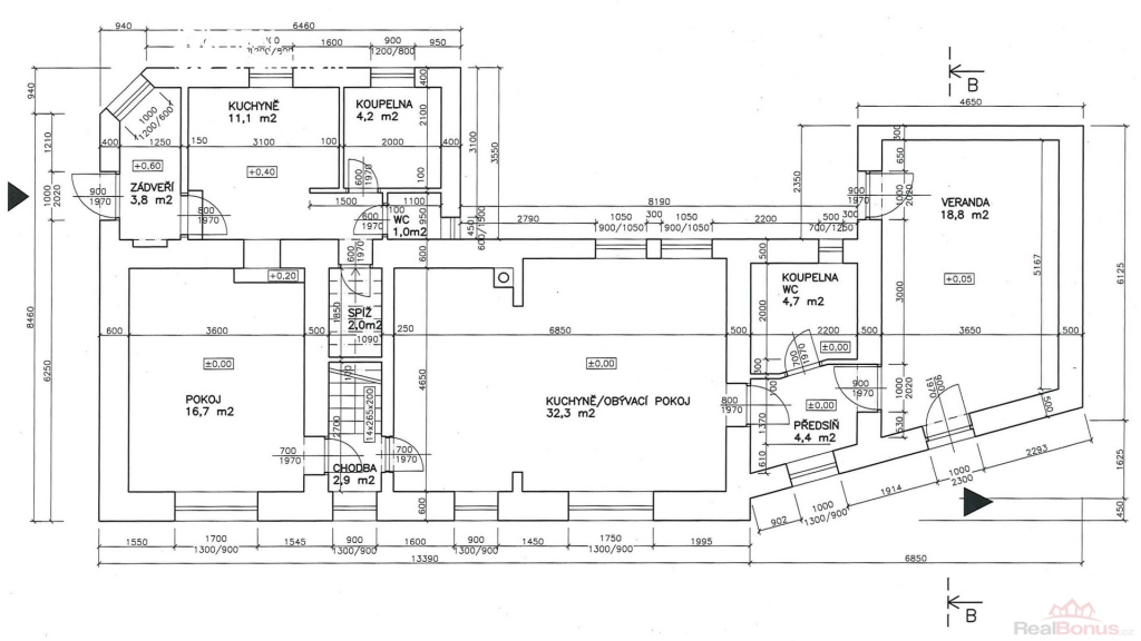
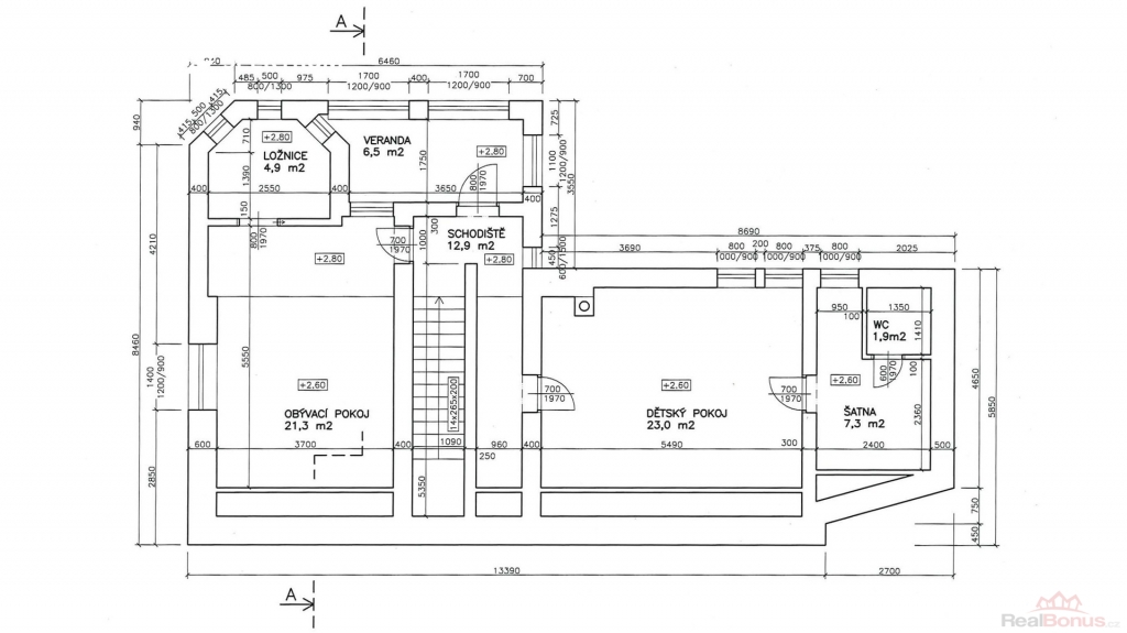
Dispozičně je dům rozdělen na dvě samostatné bytové jednotky:
1+1
3+kk se zimní zahradou
Celková užitná plocha domu je přibližně 175 m2.
K domu náleží pozemek o celkové výměře 596 m2, jehož součástí je také zahrada o výměře 400 m2. Na zahradě se nachází kulna a prostorný skleník, které ocení zejména zájemci o pěstování nebo zahradničení.
Obec Pozořice nabízí příjemné bydlení v blízkosti přírody a zároveň dobrou dostupnost do Brna. V obci je k dispozici základní občanská vybavenost ? mateřská a základní škola, obchody, restaurace, lékař i sportovní zázemí.
Díky kombinaci dvou čísel popisných, dvou bytových jednotek, zahrady a solidního technického stavu představuje tato nemovitost zajímavou příležitost jak pro rodinné bydlení, tak i pro investici.
Pro více informací nebo domluvení prohlídky mě neváhejte kontaktovat.
| Cena: |
(za nemovitost) 8 190 000,- Kč
(neplatíte provizi)
|
|---|
| Počet podlaží objektu | 2 |
|---|---|
| Druh objektu | smíšená |
| Stav objektu | velmi dobrý |
| Energetická třída | G - Mimořádně nehospodárná |
| Vybavení | zahrada |
| Zastavěná plocha | 175 m² |
| Plocha parcely | 596 m² |
| Užitná plocha | 175 m² |
| Plocha zahrady | 400 m² |
| Poloha objektu | samostatný |




