| Číslo zakázky: | 6382756 | ![]() Karta nemovitosti |
|---|---|---|
| Typ zakázky: | pronájem |
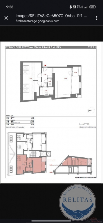
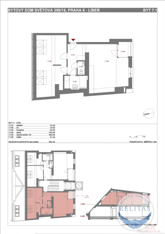
K pronájmu nabízíme zcela nový, dosud neužívaný byt 2+kk o ploše 69,6 m s balkonem 3,1 m, situovaný v kompletně zrekonstruovaném bytovém domě ve vlastnictví majitele na adrese Světova 16.
Byt vznikl v rámci náročné rekonstrukce domu, která zahrnovala výstavbu nového výtahu, nové technické rozvody i vznik nových bytových jednotek v kvalitě současné novostavby.
Interiér a standard:
Byt je navržen s důrazem na komfort, světlo a nadčasovou estetiku. Díky jižní orientaci nabízí přirozeně světlý interiér po celý den.
Dispozice zahrnuje:
prostorný obývací pokoj s kuchyňským koutem
samostatnou ložnici
elegantní koupelnu se sprchovým koutem
samostatné WC
vstupní chodbu
balkon
Použité materiály a technické řešení odpovídají prémiovému standardu:
podlahové vytápění v celém bytě
klimatizace
kvalitní podlahy v dekoru dřeva
designová koupelna a sanita
moderní kuchyňská linka se spotřebiči
interiérové dveře se skrytými panty
bezpečnostní vstupní dveře
Celek působí čistě, elegantně a funkčně bez kompromisů.
Dům a lokalita:
Reprezentativní bytový dům po kompletní rekonstrukci kombinuje moderní komfort s městským charakterem Libně.
Lokalita nabízí:
rychlé spojení do centra Prahy
metro B Palmovka, tramvajové linky
kompletní občanskou vybavenost
blízkost zeleně, parků a cyklostezek
Pro koho je byt určen:
Byt je ideální pro náročného jednotlivce nebo pár, kteří hledají:
nový byt bez kompromisů
vysoký standard bydlení
klid, světlo a kvalitu
dlouhodobý pronájem
| Cena: |
(za měsíc) 29 500,- Kč
(měsíční záloha za služby 1 100 Kč, vratná kauce 35 000 Kč, odměna zprostředkovatele 29 500 Kč) (bez poplatků) (+ provize RK) (včetně právního servisu)
|
|---|
| Dispozice bytu | 2+kk |
|---|---|
| Číslo podlaží v domě | 7 |
| Počet podlaží objektu | 7 |
| Celková podlahová plocha | 73 m² |
| Druh objektu | cihlová |
| Stav objektu | novostavba |
| Energetická třída | D - Méně úsporná |
| Vlastnictví | osobní |
| Počet podlaží pod zemí | 1 |
| Plocha balkonu | 3 m² |
| Vybavení | balkon |
| Umístění objektu | klidná část obce |
| Vybaveno | Částečně zařízeno |
| Topení | Lokální - plynové |
| Plyn | Zaveden |
| Rok kolaudace | 1 945 |
| Užitná plocha | 70 m² |
| Charakter okolní zástavby | obytná |




