| Číslo zakázky: | 00031 | ![]() Karta nemovitosti |
|---|---|---|
| Typ zakázky: | prodej |
Hledáte byt ve Vlašimi, který si můžete zrekonstruovat přesně podle svých představ?
V ulici Družstevní nabízím byt 2+1 v osobním vlastnictví o výměře 51 m2 ve zděném bytovém domě, který je nyní před kompletní rekonstrukcí ? ideální příležitost vytvořit si bydlení podle vlastního stylu i potřeb.
Byt může být zároveň zajímavou příležitostí také pro investory, kteří hledají nemovitost s potenciálem rekonstrukce a následného pronájmu.
Proč je tento byt zajímavý
? zděný bytový dům
? stropy 2,71 m ? vzdušný prostor
? byt před kompletní rekonstrukcí ? možnost vlastního řešení
? parkety v dobrém stavu
? optický internet
? přijatelné měsíční náklady
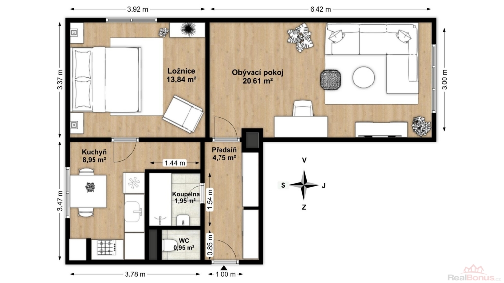
Byt se nachází ve zvýšeném přízemí cihlového bytového domu. Dispozice zahrnuje kuchyni, dva pokoje, předsíň, koupelnu a samostatné WC. K bytu náleží také sklep o 4,6 m2.
Přesné rozměry jednotlivých místností a celkovou plochu bytu najdete v přiloženém půdorysu, který je součástí prezentace.
Byt je vyklizený a připravený k rekonstrukci i předání novému majiteli. V pokojích se nachází parkety v dobrém stavu, které mohou být zajímavým prvkem budoucího interiéru.
Součástí prezentace jsou také vizualizace, díky kterým si můžete lépe představit, jak může byt po rekonstrukci vypadat a jaký potenciál tento prostor nabízí.
Dům je zateplený, má plastová okna a je napojen na obecní vodovod a kanalizaci. Vytápění je řešeno ústředním dálkovým topením, ohřev vody zajišťuje bojler.
K dispozici jsou také společné prostory domu ? sušárna a kočárkárna. Sklepní prostory jsou suché a udržované.
Parkování je možné přímo v ulici před domem.
Velkou výhodou je také lokalita s kompletní občanskou vybaveností v docházkové vzdálenosti ? obchody, školy, služby i zastávka MHD jen pár kroků od domu. Nedaleko se nachází také dětské hřiště, které je dostatečně vzdálené od bytu, takže neruší klid bydlení.
Dům spravuje fungující společenství vlastníků jednotek pod správou SBD Vlašim a SVJ má zároveň vytvořenou dostatečnou finanční rezervu ve fondu oprav, což přispívá ke stabilní správě domu i budoucím investicím do společných částí.
Měsíční zálohy
? fond oprav: 1 391 Kč
? záloha na teplo: 1 742 Kč
? ostatní služby: 658 Kč
Celkem zálohy SVJ: 3 791 Kč / měsíc
Elektřina: cca 1 500 Kč / měsíc
Celkové měsíční náklady přibližně: 5 291 Kč.
(Výše záloh se může lišit podle počtu osob užívajících byt.)
Pokud hledáte byt, který si můžete zrekonstruovat přesně podle svých představ a vytvořit si zde vlastní domov, rád vám ho osobně představím.
| Cena: |
(za nemovitost) 3 750 000,- Kč
(konečná cena včetně právních služeb, včetně provize, včetně právního servisu)
|
|---|
| Dispozice bytu | 2+1 |
|---|---|
| Číslo podlaží v domě | 1 |
| Počet podlaží objektu | 3 |
| Celková podlahová plocha | 56 m² |
| Druh objektu | cihlová |
| Stav objektu | velmi dobrý |
| Energetická třída | D - Méně úsporná |
| Vlastnictví | osobní |
| Počet podlaží pod zemí | 1 |
| Výška stropu | 2 mm |
| Plocha sklepu | 5 m² |
| Vybavení | sklep |
| Umístění objektu | centrum |
| Topení | Ústřední - dálkové |
| Doprava | vlak dálnice silnice MHD autobus |
| Voda | dálkový vodovod |
| Odpad | Městská kanalizace |
| Stáří objektu | 56 |
| Celková plocha | 56 m² |
| Ostatní | Parkoviště |
| Užitná plocha | 51 m² |
| Komunikace | asfaltová |
| Inženýrské sítě | Vodovod Kanalizace |
| Charakter okolní zástavby | obytná |
| Poloha objektu | samostatný |
