| Číslo zakázky: | 27971 | ![]() Karta nemovitosti |
|---|---|---|
| Typ zakázky: | prodej |
, prodej investiční příležitost v srdci hor. Jedná se bytový dům s 8 jednotkami o celkové ploše 500m na pozemku 997m v Příchovicích
Nabízíme k prodeji výjimečný bytový dům s 8 bytovými jednotkami, nebytovým zázemím a zastřešeným parkováním v malebné obci Příchovice, na rozhraní Jizerských hor a Krkonoš v lokalitě, která patří dlouhodobě mezi oblíbené horské destinace pro rekreaci i investice.
Tato nemovitost představuje ideální kombinaci okamžitého výnosového potenciálu a dalšího zhodnocení po dokončení rekonstrukce s možností rozprodeje bytových jednotek, dlouhodobého pronájmu i provozu apartmánového domu.
Dispozice a technické řešení objektu
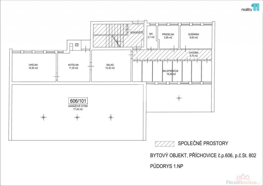
Celková plocha objektu: 500 m
Umístění: vlastní pozemek o velikosti 997 m
Přízemí:
84 m nebytových prostor
kotelna
sklepy
sklady
77,4 m zastřešených garážových stání (otevřené)
1. patro celkem 4 byty
1+kk, 27 m
1+kk, 23,7 m
3+kk, 59,4 m
3+kk,59,4 m
2. patro celkem 4 byty
1+kk, 40 m
1+kk, 23,7 m
3+kk, 59 m
3+kk, 46 m
Celkem 8 bytových jednotek různých velikostí, ideální pro diverzifikaci výnosu i cílových skupin nájemníků.
Stav a investiční potenciál:
Jednotlivé byty jsou částečně po rekonstrukci, budova je vhodná k dokončení dle investičního záměru nového majitele.
Možné scénáře využití:
- dokončení rekonstrukce, rozdělení domu na samostatné bytové jednotky a následný rozprodej
- kombinace prodeje a dlouhodobého pronájmu.
- provoz apartmánového domu s krátkodobým ubytováním
f- iremní či sportovní ubytování
Díky struktuře bytů, lokalitě a parkování má nemovitost výborný potenciál návratnosti investice a současně prostor pro další zhodnocení po rekonstrukci.
Lokalita:
Příchovice leží pod vrchem Štěpánka a nabízejí celoroční sportovní vyžití.
Zima lyže i běžky v bezprostředním okolí:
běžecké stopy cca 100 m od domu
nástup na Jizerskou magistrálu (Jizerka) cca 7 km
běžkařské tratě Harrachov, Jakuszyce (PL) v dosahu
sjezdovky:
Štěpánka 200 m
U Čápa 400 m
Rejdice 900 m
Paseky nad Jizerou 1,5 km
Harrachov 7 km
Léto kola, výhledy, singletracky
terény pro silniční i horská kola
síť singletracků, turistických tras a vyhlídek
oblast s velmi silnou letní i zimní návštěvností
Shrnutí hlavních benefitů:
8 bytových jednotek + nebytové zázemí
zastřešené parkování
vlastní pozemek 997 m
silná horská lokalita na rozhraní Jizerských hor a Krkonoš
sjezdovky i běžkařské tratě v pěší či velmi krátké dojezdové vzdálenosti
celoroční turistická atraktivita
možnost rozprodeje jednotek i výnosového pronájmu
Doporučuji prohlídku této investičně velice zajímavé nemovitosti. Ev. číslo: 27971. Energetický štítek: E (450 kWh/m2/rok).
| Cena: | na vyžádání v RK |
|---|
| Počet podlaží objektu | 3 |
|---|---|
| Druh objektu | montovaná |
| Stav objektu | velmi dobrý |
| Energetická třída | E - Nehospodárná |
| Vlastní pozemek | 997 m² |
| Vybaveno | Nezařízeno |
| Zastavěná plocha | 225 m² |
| Užitná plocha | 500 m² |
| Typ zařízení | Hotel |
