| Číslo zakázky: | R519556 | ![]() Karta nemovitosti |
|---|---|---|
| Typ zakázky: | prodej |
Jedinečná roubenka v srdci Krkonoš. Historický roubený dům z 19. století s pozemkem a parkovištěm, využitelný jako chata, chalupa či rodinný dům. Užitná plocha 155 m2 (6+kk).
Krásné místo s panoramatickou vyhlídkou na klidném místě, ale přesto 10 minut pěšky do centra (autobus, obchody, restaurace).
Široké horské louky a hluboký les hned u objektu, stejně jako několik turistických tras, které vás rychle dovedou jak na hřebeny Krkonoš, tak k peřejím řeky Jizery anebo do bučin Jizerských hor.
V zimě je už pouhým pohledem z okna na výběr několik špičkových ski areálů. V bezprostředním okolí se nachází jak horský areál Horní Domky Lysá hora, tak rodinný Studenov, na dosah jsou pak sjezdovky v Harrachově, na Pasekách, či v Jablonci nad Jizerou. V areálu na Lysé hoře se také nachází 2 540 metrů dlouhá červená sjezdovka, která si získala klasifikaci FIS.
Jde o historický dům bez dramatických zásahů do původní roubené konstrukce.
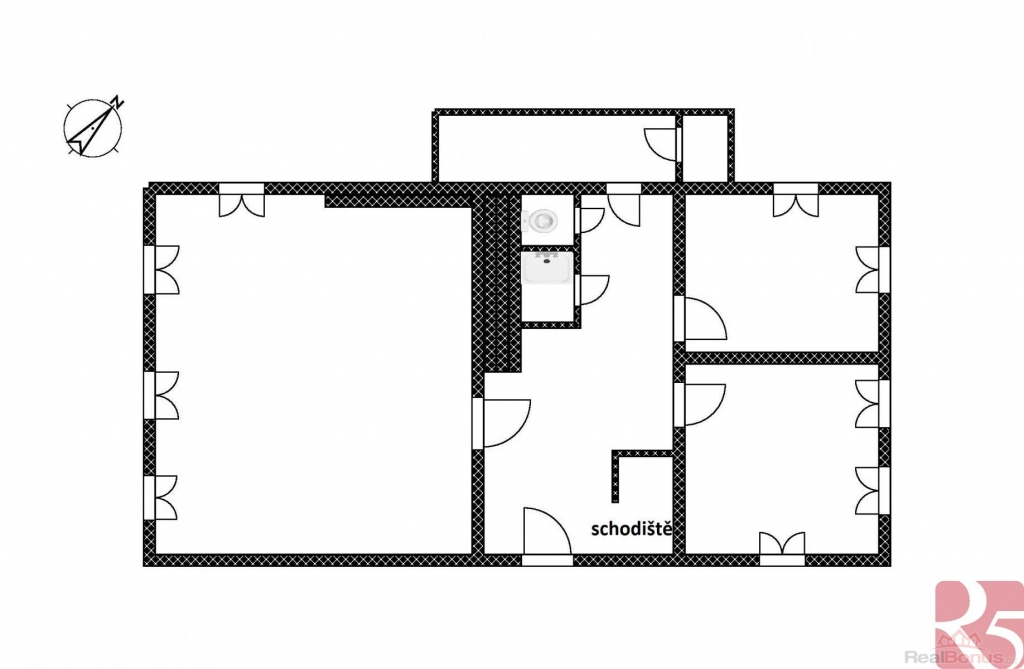
V přízemí velká společenská místnost 33m2 a dva pokoje, 11 a 13m2. V patře jsou pak tři obytné velké místnosti s dřevěnými stěnami. Dům je okamžitě obyvatelný. Napojený je na místní kanalizaci, vodovod a elektřinu. Vytápění moderním plynovým kondenzačním kotlem s dálkovým ovládáním.
Objekt je podsklepený, jeden sklep je přístupný ze zahrady, druhý z předsíně.
Velká slunná zahrada 730 m2 nabízí romantické posezení, protéká jí také malý potůček. Nabízí se dostavět venkovní posezení nebo otevřenou verandu.
U chaty jsou dvě místa na parkování.
Koupě této nemovitosti je skvělá investice, vzhledem ke strategickému umístění kousek od turistického centra a zároveň v oáze klidu.
Pro více informací a domluvení prohlídky kontaktujte makléře.
| Cena: | (za nemovitost) 6 290 000,- Kč |
|---|
| Číslo podlaží v domě | 1 |
|---|---|
| Počet podlaží objektu | 2 |
| Celková podlahová plocha | 155 m² |
| Druh objektu | dřevěná |
| Stav objektu | dobrý |
| Energetická třída | G - Mimořádně nehospodárná |
| Počet podlaží pod zemí | 1 |
| Vlastní pozemek | 867 m² |
| Vybavení | sklep |
| Umístění objektu | klidná část obce |
| Vybaveno | Částečně zařízeno |
| Topení | Ústřední - plynové |
| Elektřina | 230 V |
| Zastavěná plocha | 136 m² |
| Plocha parcely | 867 m² |
| Užitná plocha | 155 m² |
| Plocha zahrady | 731 m² |
| Inženýrské sítě | Elektřina |
| Druh stavby | rodinný dům, rekreační chalupa, rekreační pozemek |
| Poloha objektu | samostatný |




