| Číslo zakázky: | 01401 | ![]() Karta nemovitosti |
|---|---|---|
| Typ zakázky: | prodej |
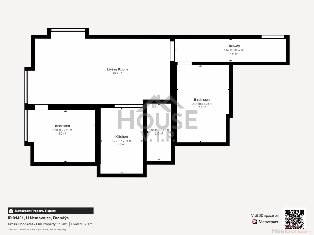
Nabízíme k prodeji byt o dispozici 2+kk a podlahové ploše 41,6 m2, který se nachází v klidné části města Brandýs nad Labem, v ulici U Nemocnice (okres Praha-východ). K bytu náleží také sklepní kóje o velikosti 1,5 m2 umístěná v přízemí domu.
Byt se nachází v domě z roku 2003 a nabízí praktické dispoziční řešení. Skládá se ze vstupní chodby, obývacího pokoje s kuchyňským koutem, který poskytuje příjemný prostor pro každodenní život i setkávání s rodinou či přáteli, a samostatné ložnice zajišťující dostatek soukromí.
Další výhodou je sklepní kóje, která poskytuje praktický úložný prostor. Parkování je možné pohodlně přímo před domem.
Měsíční náklady na bydlení činí 5 030 Kč (z toho fond oprav 1 155 Kč) + elektřina. K domu náleží také společný pozemek se zahradou o výměře 567 m2. V domě je celkem 18 bytových jednotek a velmi dobře fungující SVJ. Dům je zateplený a prošel nedávnými úpravami (oprava vrat, vstupních dveří a servis kotle). Stav fondu SVJ přesahuje 600 000 Kč.
Nemovitost představuje také zajímavou investiční příležitost ? byt je aktuálně pronajatý, což umožňuje okamžitý výnos bez nutnosti hledání nájemníka. Vytápění je řešeno centrálním domovním kotlem.
Rádi Vám pomůžeme také se zajištěním financování za výhodných podmínek a s co nejnižší možnou úrokovou sazbou.
Tato nemovitost je ideální volbou jak pro vlastní bydlení, tak jako stabilní investice. Doporučujeme osobní prohlídku.
| Cena: |
(za nemovitost) 5 590 000,- Kč
(včetně provize, včetně právního servisu)
|
|---|
| Dispozice bytu | 2+kk |
|---|---|
| Číslo podlaží v domě | 4 |
| Počet podlaží objektu | 4 |
| Celková podlahová plocha | 42 m² |
| Druh objektu | cihlová |
| Stav objektu | velmi dobrý |
| Energetická třída | E - Nehospodárná |
| Vlastnictví | osobní |
| Plocha sklepu | 2 m² |
| Vybavení | sklep zahrada |
| Rok kolaudace | 2 003 |
| Užitná plocha | 42 m² |
| Plocha zahrady | 567 m² |




