| Číslo zakázky: | 2026-152 | ![]() Karta nemovitosti |
|---|---|---|
| Typ zakázky: | prodej |
Pokud hledáte vhodný byt ihned k nastěhování či úpravám dle vlastní představy, neváhejte a do Ostravy pospíchejte!
Byt, který vám nabízíme, se nachází v žádané lokalitě Ostrava Zábřeh, Žoluděvova ulice. Celková výměra nemovitosti činí 53,15m2, včetně 2 sklepů v suterénu domu, a nachází se ve 2.NP cihlového bytového domu. Byt je v původním, ale velmi dobře udržovaném stavu. O to více se zde nabízí možnost si ho přetvořit k obrazu svému a dle vlastních představ. Jeho rohová poloha poskytuje dostatek slunečních paprsků a světla po celý den.
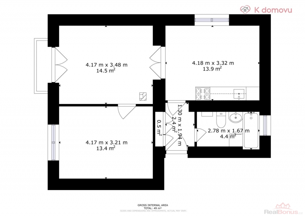
Nemovitost byla až doposud celoročně a plnohodnotně využívána, udržována v čistotě a pořádku. Dispozice bytu 2+1 o velikosti cca 49,35m2 disponuje vstupní chodbou, kuchyní s jídelnou, ložnicí a obývacím pokojem s francouzským oknem, které umožňuje větší prostor pro světlo z jihozápadní strany. Na chodbě je pak vestavěná skříň a koupelna s WC. Dva sklepy mají celkem 3,80m2. Pro svou dispozici je byt vhodný i jako investiční příležitost k pronájmu. V domě jsou veškeré IS a vytápění je řešeno plynovými tělesy Mora a v koupelně je bojler napojen na plynovou karmu.
Bytový dům se nachází v klidné zóně, a tak může být určen i pro zájemce, kteří dokáží ocenit klid a pohodlné bydlení s dobrou adresou. Nedaleko domu jsou sportovní areály, obchody, lékárna, restaurace, pošta, MHD, MŠ i ZŠ. Blízký Bělský les nabízí dostatek prostoru k odpočinku, procházkám i sportovním aktivitám. Nemovitost se tak nachází v místě s kompletní občanskou vybaveností a dostupnou infrastrukturou, která podtrhuje atraktivitu tohoto místa, a nabízí tak i možnost nadstandardního bydlení náročnějším klientům. Výbornou dopravní dostupnost zajišťuje autobusová i tramvajová zastávka v blízkosti domu. A pokud by byl zájem, bylo by možné pro vašeho ocelového mazlíka domluvit i stávající nájemní garážování.
Byt je k dispozici po dohodě a prohlídky jsou možné po domluvě, jelikož se v bytě ještě bydlí. Uvedené výměry jsou orientační. V případě více zájemců bude nemovitost prodána nejlepší nabídce a majitel si vyhrazuje právo vybrat kupujícího na základě jim zvolených kritérií. Veškeré zveřejněné údaje obsažené v tomto inzerátu mají pouze informativní charakter a nejsou nabídkou ve smyslu § 1731 nebo § 1732 občanského zákoníku, ani se nejedná o veřejný příslib dle § 1733 občanského zákoníku.
Na koupi bytu je možné využít i financování hypotečním úvěrem, se kterým Vám rádi pomůžeme.
Podrobnější informace k nemovitosti i možnostem financování vám sdělí makléřka na prohlídce, kterou vřele doporučuje.
Cena je uvedena včetně všech poplatků, právního servisu i provize RK.
| Cena: |
(za nemovitost) 3 139 000,- Kč
(cena k jednání) (Cena je uvedena včetně veškerých poplatků RK i právního servisu)
|
|---|
| Dispozice bytu | 2+1 |
|---|---|
| Číslo podlaží v domě | 2 |
| Počet podlaží objektu | 4 |
| Celková podlahová plocha | 49 m² |
| Druh objektu | cihlová |
| Stav objektu | dobrý |
| Energetická třída | D - Méně úsporná |
| Vlastnictví | osobní |
| Počet podlaží pod zemí | 1 |
| Plocha sklepu | 4 m² |
| Umístění objektu | okrajová zástavba |
| Topení | Lokální - plynové |
| Doprava | vlak |
| Odpad | Městská kanalizace |
| Plyn | Zaveden |
| Užitná plocha | 49 m² |
| Komunikace | asfaltová |
| Charakter okolní zástavby | obytná |




