| Číslo zakázky: | 01310 | ![]() Karta nemovitosti |
|---|---|---|
| Typ zakázky: | pronájem |
Volné od 1.5.2026
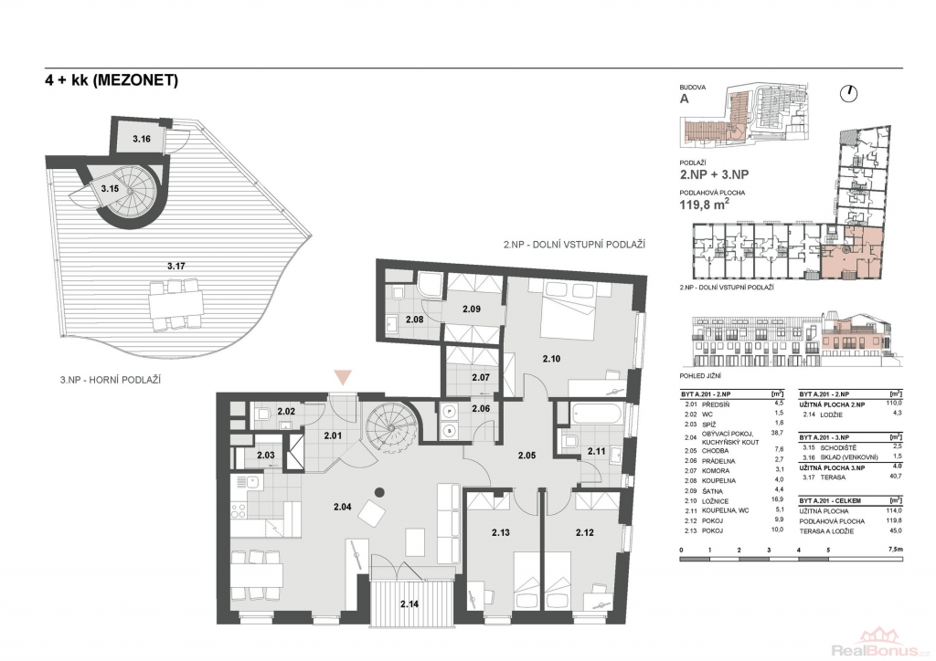
Nabízíme k pronájmu prostorný byt o dispozici 4+kk v novostavbě z roku 2022 v ulici Na Návsi v Dolních Měcholupech. Byt má užitnou plochu 114 m2 + lodžie 4,3 m2 + terasa 40,7 m2. K bytu náleží dvě garážová stání v suterénu objektu. Celý byt je vybaven klimatizací.
Byt disponuje obývacím pokojem propojeným s kuchyní. Ta je vybavenou kuchyňskou linkou, na kterou navazuje spižírna a sklad na přístroje. Z obývacího pokoje je přístupná lodžie a po točitých schodech také terasa na střeše bytu. Na terase se nachází komora pro skladování věcí z terasy. Na obývací pokoj navazuje chodba k ložnicím. Dvě menší vhodné jako dětské pokoje nebo pracovna a jedna hlavní ložnice s šatnou a vlastní koupelnou vybavenou sprchovým koutem a toaletou. K dispozici je dále společná koupelna s vanou a toaletou, dále prádelna s pračkou a sušičkou a komora s druhou lednicí. U vstupu se pak nachází prosklená předsíň, na kterou navazuje samostatná toaleta. Vně bytu na společné chodbě se pak nachází sklep. K dispozici je i společná kolárna.
Dům je situován na klidném místě. V těsné blízkosti se nachází restaurace, park, škola, školka, autobusová zastávka. V docházkové vzdálenosti je zastávka vlaku. Nedaleko se pak nachází OC Štěrboholy, Fashion Arena, Galerie Golf Hostivař, lesopark Hostivař s přehradou.
Ne domácí mazlíčci.
Nájemné 39.000,-Kč + poplatky 8.500,-Kč. Elektřina bude přepsána na nájemce. Kauce 78.000,-Kč, provize RK 39.000,-Kč.
| Cena: | (za měsíc) 39 000,- Kč |
|---|
| Dispozice bytu | 4+kk |
|---|---|
| Číslo podlaží v domě | 2 |
| Celková podlahová plocha | 114 m² |
| Druh objektu | cihlová |
| Stav objektu | velmi dobrý |
| Energetická třída | B - Velmi úsporná |
| Vlastnictví | osobní |
| Lodžie | 4 m² |
| Plocha teras | 40 m² |
| Vybavení | lodžie terasa |
| Topení | Jiné |
| Parkování | garáž |
| Ostatní | Garáž |
| Užitná plocha | 114 m² |
| K dispozici od | 01.05.2026 |




