| Číslo zakázky: | R519558 | ![]() Karta nemovitosti |
|---|---|---|
| Typ zakázky: | prodej |
Na prodej exkluzivní rodinný dům v malebné krajině, na zcela klidném místě, nedaleko Kácova u řeky Sázava. Prodej udržovaného rodinného domu v půvabné krajině Posázaví Holšice, okres Kutná Hora.
Prostorný rodinný dům s velkým zázemím, v klidné vesnici Holšice (Chabeřice). Dům je situován na kraji vesnice s otevřenými výhledy do široké okolní krajiny.
Jedná se o přestavbu původního vesnického stavení s hospodářským zázemím. Celková plocha pozemku 1 002m2, užitná plocha domu činí 188m2. Dům má zánovní střechu Bramac, včetně výměny části krovu, klempířských prvků a dalších stavebních úprav. Je velmi dobře udržován a prošel postupnou rekonstrukcí interiérů i exteriérů.
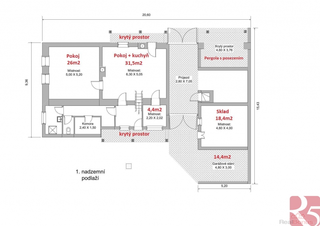
V 1 NP se nachází vstupní předsíň se vstupem do velkorysé hlavní místnosti s kuchyní a obývací částí. Odtud je možný přímý vstup do krytého venkovního posezení a zahrady. Vstup do dalšího pokoje situovaného do štítu domu a menšího pokoje směrem do dvora. Z předsíně je přístupná část s oddělenou toaletou, koupelnou se sprchovým koutem a komorou.
Podkroví je přístupné schodištěm z předsíně a nachází se v něm tři pokoje, každý s odděleným vstupem.
Dále i vlastní půda s možností úložných prostor. Dům je vytápěn krbovými kamny, a dvěma dalšími kamny na tuhá paliva. Jsou k dispozici přímotopy s dálkovým ovládáním, přes mobilní telefon.
K domu je zahrada o rozloze 2 875m2 jen 30 m od domu, situovaná na hrázi rybníka s malým potůčkem, osázená ovocnými stromy, ideální k chovu zvířat, nebo pěstování zahradních a rostlinných plodin.
Přípojky: elektřina 220, 380 V, obecní vodovod, vlastní studna, septik. (V obci je plánována kanalizace).
Příslušenství tvoří rozlehlá, opravená stodola s krytým parkovacím stáním, dílnou, skladem, hloubeným sklepem a tři krytá venkovní posezení.
Dále objekt bývalé prádelny s vodou a elektřinou (možnost dílny, keramické dílny, sauny atd. )
Zahrada umožňuje nerušené soukromí a velkorysé výhledy do okolní krajiny bez rušivých okolních vlivů. Je osázena vzrostlými ovocnými a jehličnatými stromy, keři a dalšími rostlinami. Přístup je zajištěn obecní asfaltovou komunikací.
Bezprostřední okolí domu tvoří malebná krajina s hezkými výhledy, blízkou řekou Sázavou (koupání 700m), možností výletů pěších, cyklistických i vodáckých. V okolí jsou historická města Kácov, Český Štemberk a Zruč nad Sázavou, Golfový areál, Kácovský pivovar, Zámek, tenisové kurty atd. Veškerá občanská vybavenost vzdálena 4 km (Kácov, Zruč) Výborné spojení s Prahou: dálnice D1 Praha 55km cca 45 min. Dále vlak směr Čerčany a Praha.
Ideální místo pro odpočinek, ale možné i pro trvalé bydlení.
| Cena: |
(za nemovitost) 6 790 000,- Kč
(+ pozemek 500.000,-Kč)
|
|---|
| Číslo podlaží v domě | 1 |
|---|---|
| Počet podlaží objektu | 1 |
| Druh objektu | cihlová |
| Stav objektu | dobrý |
| Energetická třída | G - Mimořádně nehospodárná |
| Vlastní pozemek | 3 877 m² |
| Vybavení | terasa sklep |
| Umístění objektu | klidná část obce |
| Vybaveno | Nezařízeno |
| Topení | Lokální - tuhá paliva |
| Elektřina | 230 V |
| Zastavěná plocha | 200 m² |
| Plocha parcely | 3 877 m² |
| Jiné plochy | 2 876 m² |
| Plocha zahrady | 800 m² |
| Inženýrské sítě | Vodovod Kanalizace Elektřina |
| Druh stavby | rodinný dům, rekreační chalupa, rekreační pozemek |
| Poloha objektu | samostatný |




