| Číslo zakázky: | 2026019 | ![]() Karta nemovitosti |
|---|---|---|
| Typ zakázky: | prodej |
Moderní 2+kk s velkým balkonem a výhledem na Šumavu, parkování v domě, novostavba se zárukou.
Kašperské Hory jsou krásné historické město s rozvinutou infrastrukturou.
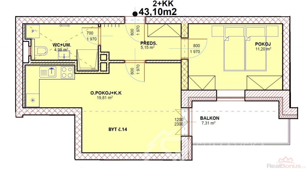
Nabízíme zde k prodeji světlý a moderní byt o dispozici 2+kk a výměře 43 m, situovaný ve 2. nadzemním podlaží právě dokončeného bytového domu s výtahem (celkem 24 bytů).
Dominantou bytu je prostorný balkon o velikosti 7,3 m orientovaný na jihozápad, který nabízí krásný výhled na Šumavu a dostatek slunce po většinu dne. Obývací pokoj s francouzskými dveřmi na balkon plynule navazuje na kuchyňský kout umístěný v praktickém zálivu. Ložnice má vlastní okno směrem na balkon, což zajišťuje příjemnou atmosféru i dostatek světla.
Koupelna je vybavena sprchovým koutem, závěsným WC, umyvadlem a vyhřívaným žebříkem. Vše v bytě je zcela nové a vztahuje se na něj záruka 5 let.
Velkou výhodou je kryté parkovací stání v suterénu domu, kam pohodlně dojedete výtahem přímo z patra bytu. K bytu je samozřejmě i sklep.
Dům je napojen na ekologické městské vytápění na biomasu, které představuje velmi úsporný a šetrný způsob vytápění s nízkými provozními náklady.
Ideální volba jak pro vlastní bydlení, tak i jako investice. Cenu vám rádi sdělíme.
| Cena: | na vyžádání v RK |
|---|
| Dispozice bytu | 2+kk |
|---|---|
| Číslo podlaží v domě | 2 |
| Celková podlahová plocha | 43 m² |
| Druh objektu | cihlová |
| Stav objektu | novostavba |
| Energetická třída | B - Velmi úsporná |
| Vlastnictví | osobní |
| Plocha balkonu | 7 m² |
| Plocha sklepu | 2 m² |
| Vybavení | balkon |
| Umístění objektu | klidná část obce |
| Odpad | Městská kanalizace |
| Rok kolaudace | 2 026 |
| Počet míst k parkování | 1 |
| Užitná plocha | 43 m² |
| Komunikace | asfaltová |




