| Číslo zakázky: | 28121 | ![]() Karta nemovitosti |
|---|---|---|
| Typ zakázky: | pronájem |
+popl. 5500, + přepis elektřiny na nájemníka , Hledáte byt k pronájmu po kompletní rekonstrukci, kde už stačí jen převzít klíče a začít bydlet? Máme pro vás byt 3+1 ve Světlé nad Sázavou, který se nachází v ulici Na Sídlišti, jen kousek od centra města.
Byt nabízí užitnou plochu 67 m a bonusem je balkón o velikosti 4 m, ideální místo pro ranní kávu nebo chvíle odpočinku. Praktickým benefitem je také komora o velikosti 2 m umístěná mimo bytovou jednotku, která poskytuje další prostor pro uskladnění věcí.
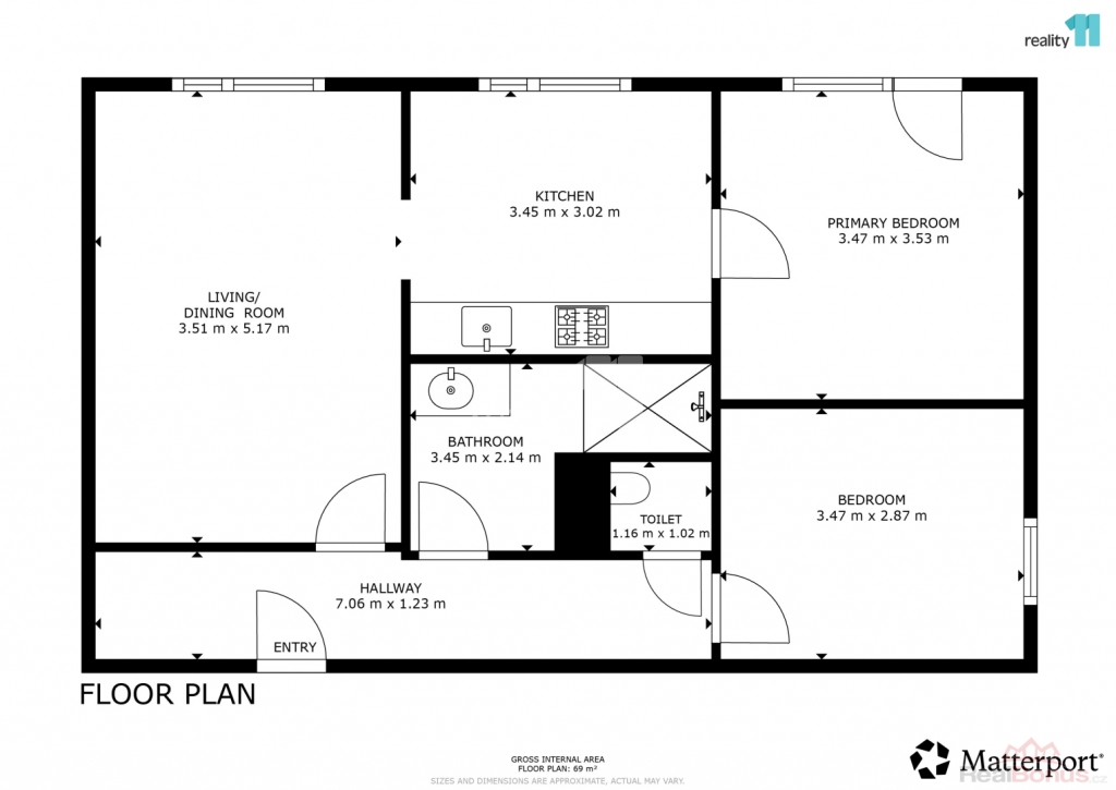
Dispozičně je byt řešen jako 3+1 a nabízí obývací pokoj, ložnici, kuchyni, další pokoj, koupelnu, samostatné WC a prostornou chodbu, která poskytuje dostatek prostoru pro umístění úložných prostor.
V rámci rekonstrukce došlo k celkové výměně elektroinstalace a vodovodních rozvodů. Byt má nové omítky a všude byla položena nová podlahová krytina. Díky tomu nabízí bydlení bez nutnosti dalších investic.
Velkou výhodou je také samotná lokalita. Ulice Na Sídlišti ve Světlé nad Sázavou patří mezi vyhledávané části města v docházkové vzdálenosti najdete obchody, školy, školky i další občanskou vybavenost a zároveň jste jen pár minut chůze od centra.
Měsíční nájemné činí 14 500 Kč, zálohy na energie jsou stanoveny ve výši 5 500 Kč. Elektřina se přepisuje na nájemníka. Vratná kauce je stanovena ve výši 29 000 Kč. Při podpisu nájemní smlouvy hradí zájemce provizi realitní kanceláři.
K bytu je k dispozici také 3D virtuální prohlídka, kterou vám na vyžádání velmi rádi zašleme.
Pokud vás tato nabídka zaujala, neváhejte mě kontaktovat pro více informací nebo domluvení osobní prohlídky. Budu se na vás těšit při společném setkání. Ev. číslo: 28121. Energetický štítek: G
| Cena: |
(za měsíc) 14 500,- Kč
(+popl. 5500, + přepis elektřiny na nájemníka)
|
|---|
| Dispozice bytu | 3+1 |
|---|---|
| Číslo podlaží v domě | 2 |
| Počet podlaží objektu | 7 |
| Celková podlahová plocha | 67 m² |
| Druh objektu | panelová |
| Stav objektu | velmi dobrý |
| Energetická třída | G - Mimořádně nehospodárná |
| Vlastnictví | osobní |
| Vybavení | balkon |
| Vybaveno | Nezařízeno |
| Užitná plocha | 67 m² |




